




1.0-Acre Field Land for Sale in West Sussex
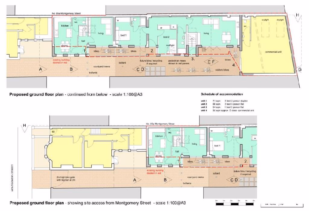
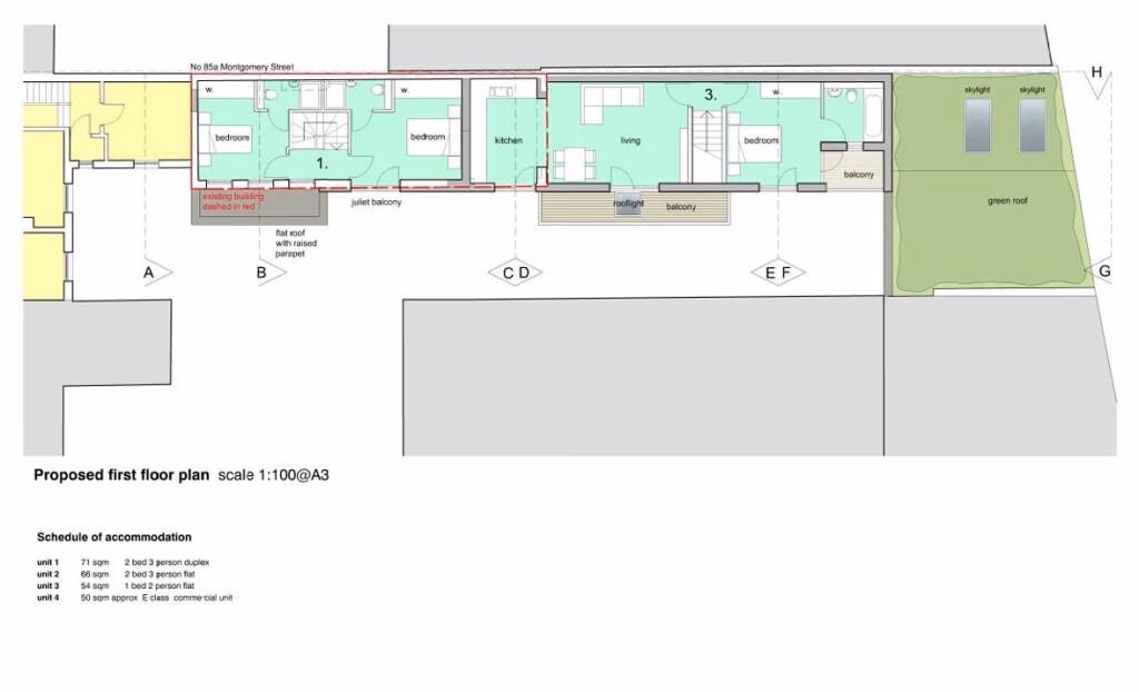
An attractive mews property in this popular Poets Corner district of Hove with It’s bustling coffee culture high street. Planning has been approved to renovate and convert these current commercial buildings to create three well laid out residential units and create a new a Class E comm...
1.0-Acre Field Land for Sale in West Sussex
Description
An attractive mews property in this popular Poets Corner district of Hove with It’s bustling coffee culture high street. Planning has been approved to renovate and convert these current commercial buildings to create three well laid out residential units and create a new a Class E comm...
Contact Agent
Smart Picks — Professionals Relevant to This Land
Based on this property's key features, here are the specialists you may want to consult as part of your due diligence: land agents, rics surveyors, rural solicitors and planning consultants.

Land Agents
Essential for navigating the land market, finding buyers, and securing the best price.

RICS Surveyors
High-value property (£700K+) requires professional valuation for accurate pricing and due diligence.

Rural Solicitors
Significant investment (£700K+) requires legal expertise for conveyancing, title checks, and transaction security.

Planning Consultants
Planning-sensitive site needs expert guidance for applications and development strategy.
Location
Hove