




0.15-Acre Development Land for Sale in South Wales
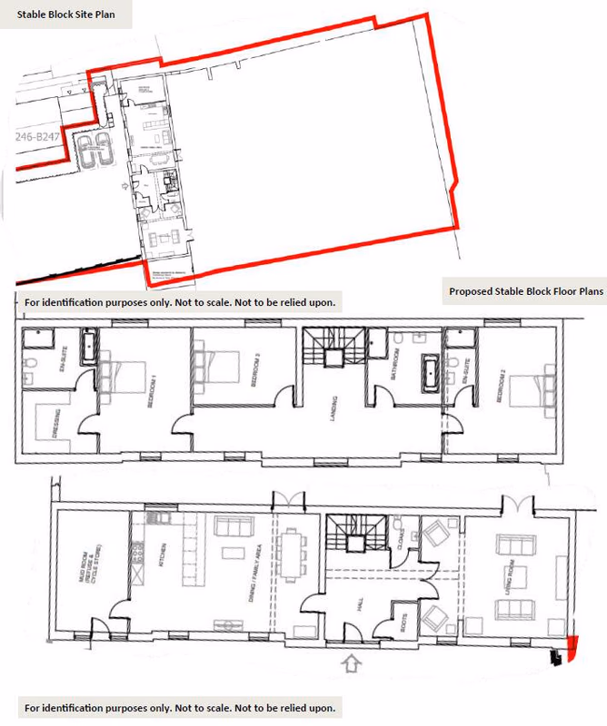
Two development opportunities, one former Mill building and one former Stable Block building, within the Orchard Grove Urban Extension. Both are Grade II listed by association to Comeytrowe Manor. The former Stable Block building benefits from detailed planning permission fo...
0.15-Acre Development Land for Sale in South Wales
Description
Two development opportunities, one former Mill building and one former Stable Block building, within the Orchard Grove Urban Extension. Both are Grade II listed by association to Comeytrowe Manor. The former Stable Block building benefits from detailed planning permission fo...
Contact Agent
Smart Picks — Professionals Relevant to This Land
Based on this property's key features, here are the specialists you may want to consult as part of your due diligence: land agents, planning consultants and rics surveyors.

Land Agents
Essential for navigating the land market, finding buyers, and securing the best price.

Planning Consultants
Planning-sensitive site needs expert guidance for applications and development strategy.

RICS Surveyors
Prime or productive land requires professional valuation to ensure fair market value.
Location
Somerset