




1.00-Acre Development Land for Sale in South Wales
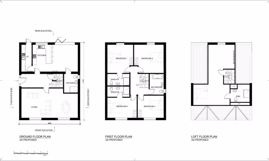
BUILDING PLOT - FULL PERMISSION - P1474/24/FUL - 10/12/2024 Planning permission has been granted for the erection of a new self-build, 5 bedroom dwelling with off road parking and associated works.
1.00-Acre Development Land for Sale in South Wales
Description
BUILDING PLOT - FULL PERMISSION - P1474/24/FUL - 10/12/2024 Planning permission has been granted for the erection of a new self-build, 5 bedroom dwelling with off road parking and associated works.
Contact Agent
Smart Picks — Professionals Relevant to This Land
Based on this property's key features, here are the specialists you may want to consult as part of your due diligence: land agents, rural solicitors and planning consultants.

Land Agents
Essential for navigating the land market, finding buyers, and securing the best price.

Rural Solicitors
Significant investment (£200K+) requires legal expertise for conveyancing, title checks, and transaction security.

Planning Consultants
Planning-sensitive site needs expert guidance for applications and development strategy.
Location
Lydney