




0.24-Acre Development Land for Sale in South Wales
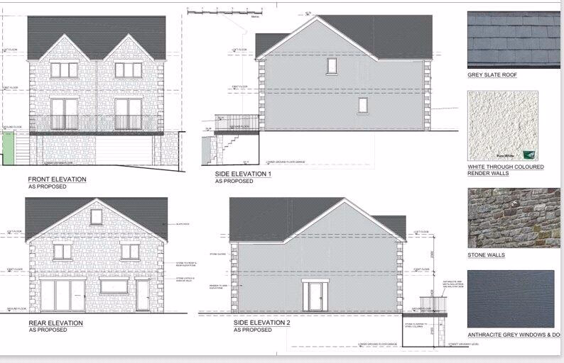
Full Planning permission for a 5-bedroom detached modern property with parking and generous garden area, extending in total to approx. 0.24 acres (993sqm)
0.24-Acre Development Land for Sale in South Wales
Description
Full Planning permission for a 5-bedroom detached modern property with parking and generous garden area, extending in total to approx. 0.24 acres (993sqm)
Contact Agent
Smart Picks — Professionals Relevant to This Land
Based on this property's key features, here are the specialists you may want to consult as part of your due diligence: land agents, rural solicitors and planning consultants.

Land Agents
Essential for navigating the land market, finding buyers, and securing the best price.

Rural Solicitors
Significant investment (£200K+) requires legal expertise for conveyancing, title checks, and transaction security.

Planning Consultants
Planning-sensitive site needs expert guidance for applications and development strategy.
Location
Gloucestershire