



1.00-Acre Development Land for Sale in South Wales
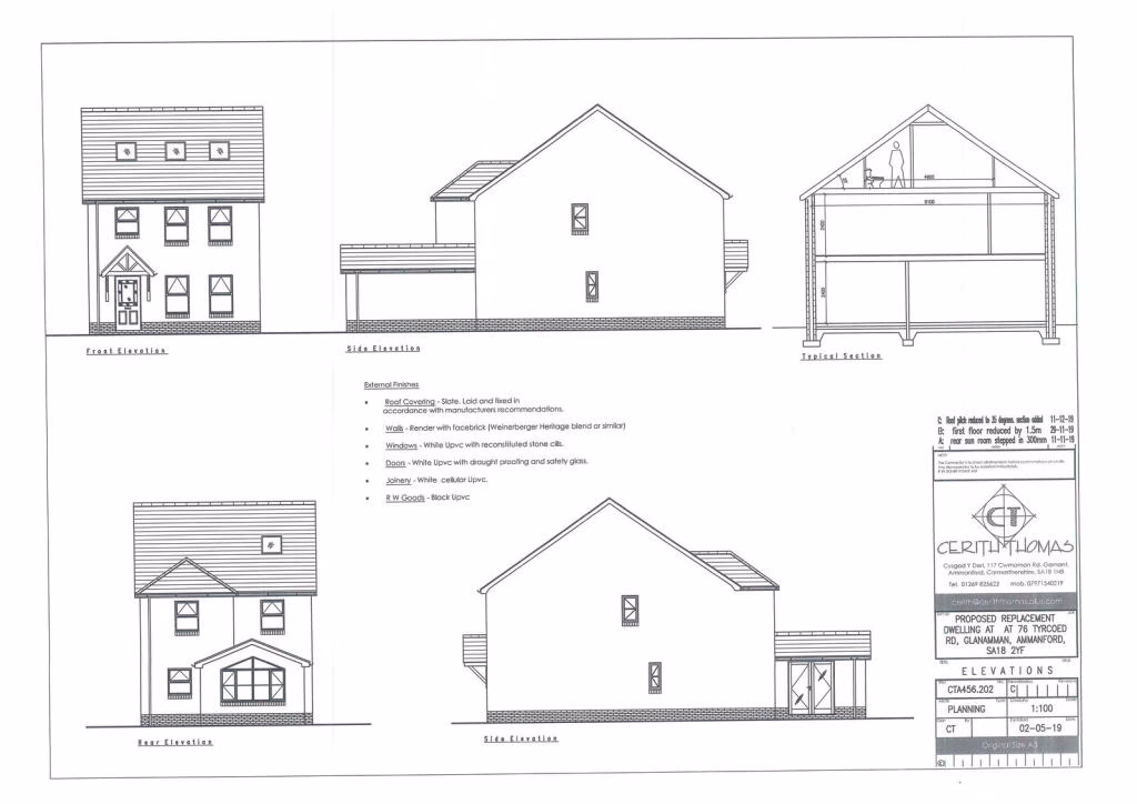
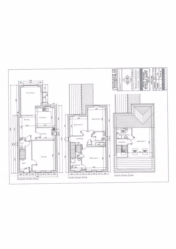
Full planning permission has been granted for a replacement dwelling at 76 Tirycoed Road, Glanamman, planning reference E/39400 was granted on 18/12/2009. There is no requirement for a contribution towards affordable housing. Services are available subject to the necessary connection charges a...
1.00-Acre Development Land for Sale in South Wales
Description
Full planning permission has been granted for a replacement dwelling at 76 Tirycoed Road, Glanamman, planning reference E/39400 was granted on 18/12/2009. There is no requirement for a contribution towards affordable housing. Services are available subject to the necessary connection charges a...
Contact Agent
Smart Picks — Professionals Relevant to This Land
Based on this property's key features, here are the specialists you may want to consult as part of your due diligence: land agents and planning consultants.
Location
Ammanford

