




1.0-Acre Field Land for Sale in South Glamorgan
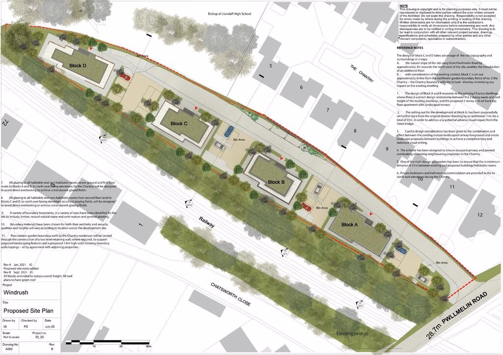
** DEVELOPMENT OPPORTUNITY ** A rare opportunity to acquire this 1 acre (0.4 Ha) development site, currently a detached derelict bungalow, situated in the prime village of Llandaff, Cardiff. With FULL PLANNING PERMISSION (subject to signing the Section 106 Agreement) for two different schemes, on...
1.0-Acre Field Land for Sale in South Glamorgan
Description
** DEVELOPMENT OPPORTUNITY ** A rare opportunity to acquire this 1 acre (0.4 Ha) development site, currently a detached derelict bungalow, situated in the prime village of Llandaff, Cardiff. With FULL PLANNING PERMISSION (subject to signing the Section 106 Agreement) for two different schemes, on...
Contact Agent
Smart Picks — Professionals Relevant to This Land
Based on this property's key features, here are the specialists you may want to consult as part of your due diligence: land agents, rics surveyors, rural solicitors and planning consultants.

Land Agents
Essential for navigating the land market, finding buyers, and securing the best price.

RICS Surveyors
High-value property (£850K+) requires professional valuation for accurate pricing and due diligence.

Rural Solicitors
Significant investment (£850K+) requires legal expertise for conveyancing, title checks, and transaction security.

Planning Consultants
Existing structures require planning expertise for conversions, renovations, or demolition consent.
Location
Llandaff