




Development Land in Corbett Street for Sale - £99,950
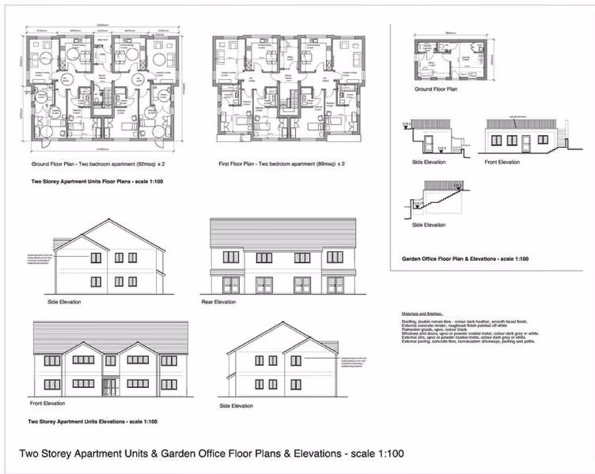
** PLOT OF LAND WITH FULL PLANNING PERMISSION ** We are pleased to offer for this clear land site, with the benefit of full planning permission (planning no. 21/0665/10), for the construction of two blocks of self contained residential apartments, each with four, two bedroom units and a staff off...
Development Land in Corbett Street for Sale - £99,950
Description
** PLOT OF LAND WITH FULL PLANNING PERMISSION ** We are pleased to offer for this clear land site, with the benefit of full planning permission (planning no. 21/0665/10), for the construction of two blocks of self contained residential apartments, each with four, two bedroom units and a staff off...
Contact Agent
Smart Picks — Professionals Relevant to This Land
Based on this property's key features, here are the specialists you may want to consult as part of your due diligence: land agents and planning consultants.
Location
Corbett Street

