




1.00-Acre Development Land for Sale in Nottinghamshire
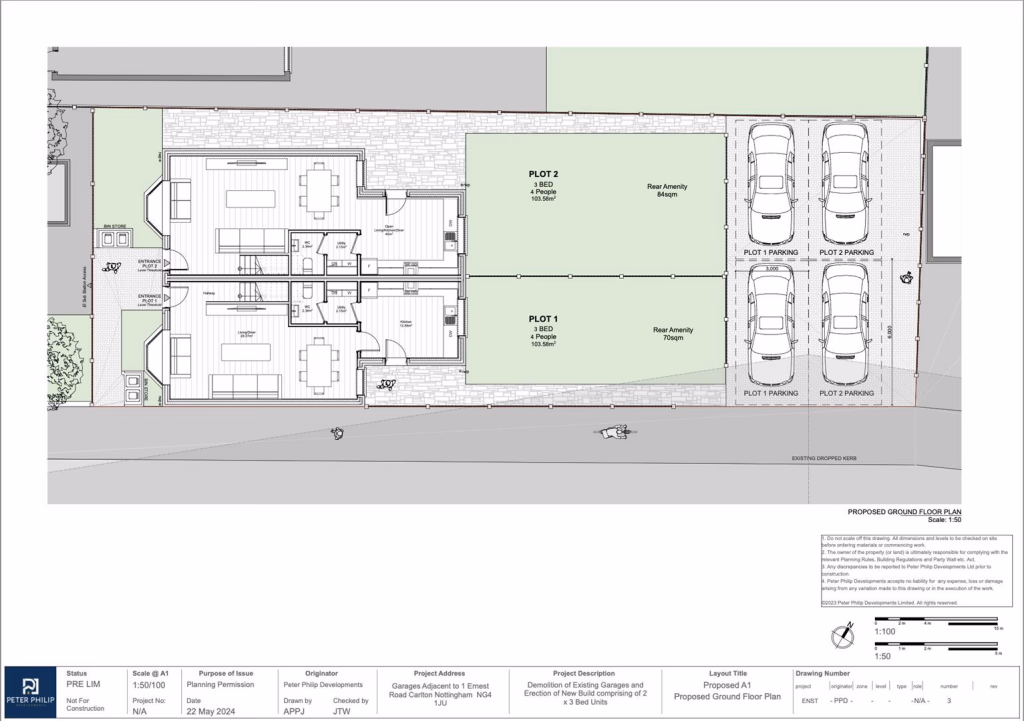
FULL PLANNING PERMISSION GRANTED!... GUIDE PRICE £160,000 - £170,000 A superb development opportunity on Ernest Road, Carlton, Nottingham. The site currently consists of a block of garages and comes with full planning consent (Ref: 2024/0549 – Gedling Borough Council) for the c...
1.00-Acre Development Land for Sale in Nottinghamshire
Description
FULL PLANNING PERMISSION GRANTED!... GUIDE PRICE £160,000 - £170,000 A superb development opportunity on Ernest Road, Carlton, Nottingham. The site currently consists of a block of garages and comes with full planning consent (Ref: 2024/0549 – Gedling Borough Council) for the c...
Contact Agent
Smart Picks — Professionals Relevant to This Land
Based on this property's key features, here are the specialists you may want to consult as part of your due diligence: land agents, rural solicitors, planning consultants and rics surveyors.

Land Agents
Essential for navigating the land market, finding buyers, and securing the best price.

Rural Solicitors
Significant investment (£160K+) requires legal expertise for conveyancing, title checks, and transaction security.

Planning Consultants
Planning-sensitive site needs expert guidance for applications and development strategy.

RICS Surveyors
Prime or productive land requires professional valuation to ensure fair market value.
Location
Nottingham