




1.00-Acre Development Land for Sale in North Wales
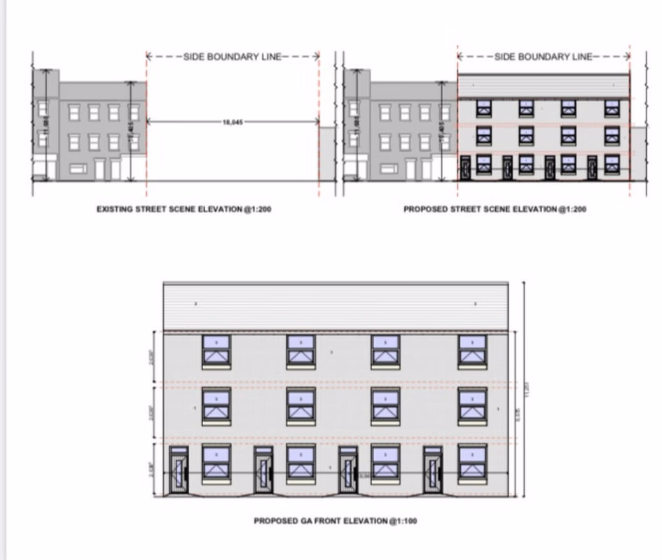
Tyron Ash International Real Estate is pleased to present and exciting opportunity to purchase Land that's has planning permission to erect a 3-storey building, the planning was approved on 26th January 2023
1.00-Acre Development Land for Sale in North Wales
Description
Tyron Ash International Real Estate is pleased to present and exciting opportunity to purchase Land that's has planning permission to erect a 3-storey building, the planning was approved on 26th January 2023
Contact Agent
Smart Picks — Professionals Relevant to This Land
Based on this property's key features, here are the specialists you may want to consult as part of your due diligence: land agents, rural solicitors and planning consultants.

Land Agents
Essential for navigating the land market, finding buyers, and securing the best price.

Rural Solicitors
Significant investment (£175K+) requires legal expertise for conveyancing, title checks, and transaction security.

Planning Consultants
Planning-sensitive site needs expert guidance for applications and development strategy.
Location
Liverpool