




1.00-Acre Development Land for Sale in North Wales
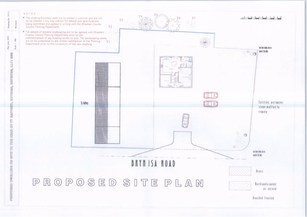
Located in Wrexham, the plot of land in question has undergone recent improvements that enhance its appeal and marketability. One notable change is the removal of the resident parking, allowing for a more spacious and visually appealing environment. Furthermore, a significant development on the p...
1.00-Acre Development Land for Sale in North Wales
Description
Located in Wrexham, the plot of land in question has undergone recent improvements that enhance its appeal and marketability. One notable change is the removal of the resident parking, allowing for a more spacious and visually appealing environment. Furthermore, a significant development on the p...
Contact Agent
Smart Picks — Professionals Relevant to This Land
Based on this property's key features, here are the specialists you may want to consult as part of your due diligence: land agents, rural solicitors and rics surveyors.

Land Agents
Essential for navigating the land market, finding buyers, and securing the best price.

Rural Solicitors
Significant investment (£150K+) requires legal expertise for conveyancing, title checks, and transaction security.

RICS Surveyors
Prime or productive land requires professional valuation to ensure fair market value.
Location
Brynteg