




1.00-Acre Development Land for Sale in North Wales
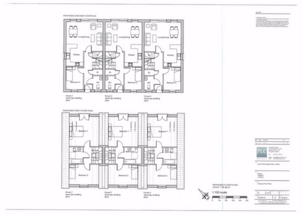
Attention developers and builders alike as Williams & Goodwin are delighted to offer this good sized parcel of land which has obtained full planning consent in March 2024 for a terrace of 3 houses [with one to be offered as an affordable unit]
1.00-Acre Development Land for Sale in North Wales
Description
Attention developers and builders alike as Williams & Goodwin are delighted to offer this good sized parcel of land which has obtained full planning consent in March 2024 for a terrace of 3 houses [with one to be offered as an affordable unit]
Contact Agent
Smart Picks — Professionals Relevant to This Land
Based on this property's key features, here are the specialists you may want to consult as part of your due diligence: land agents, rural solicitors, planning consultants and land consultants.

Land Agents
Essential for navigating the land market, finding buyers, and securing the best price.

Rural Solicitors
Significant investment (£120K+) requires legal expertise for conveyancing, title checks, and transaction security.

Planning Consultants
Planning-sensitive site needs expert guidance for applications and development strategy.

Land Consultants
Multiple parcels or complex land structure requires expert analysis for optimal development strategy.
Location
Anglesey