
1/2

£93K
Size not specified
£93K
Spalding Road
Size not specified
Plot for sale
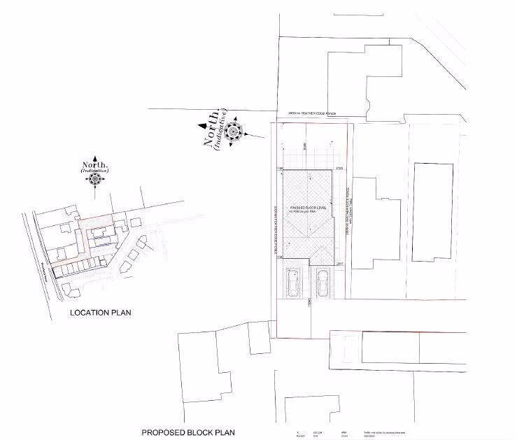
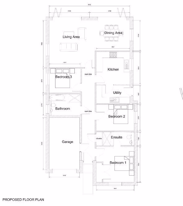
APPROVED PLANNING FOR A THREE BEDROOM DETACHED BUNGALOW WITH SINGLE GARAGE AND OFF ROAD PARKING. PLANNING REFERENCE H14-0924-24 Plot is down a private drive in the village of pinchbeck. The plot has approved planning for a three bedroom detached bungalow with single garage.
Plot for sale
Size not specified
development
available
freehold
Description
APPROVED PLANNING FOR A THREE BEDROOM DETACHED BUNGALOW WITH SINGLE GARAGE AND OFF ROAD PARKING. PLANNING REFERENCE H14-0924-24 Plot is down a private drive in the village of pinchbeck. The plot has approved planning for a three bedroom detached bungalow with single garage.
Contact Agent
Leaders, Spalding
Smart Picks — Professionals Relevant to This Land
Based on this property's key features, here are the specialists you may want to consult as part of your due diligence: land agents and planning consultants.
Location
Spalding Road

