

Plot for sale
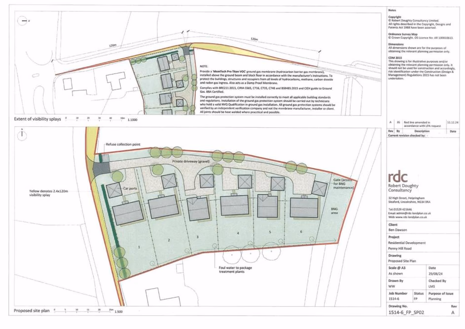
Situated on the desirable Penny Hill Road in Holbeach, near Spalding, this remarkable opportunity offers six building plots, each with full planning permission. This prime location is perfect for those wishing to construct their dream home in a lively residential area.
Plot for sale
Description
Situated on the desirable Penny Hill Road in Holbeach, near Spalding, this remarkable opportunity offers six building plots, each with full planning permission. This prime location is perfect for those wishing to construct their dream home in a lively residential area.
Contact Agent
Smart Picks — Professionals Relevant to This Land
Based on this property's key features, here are the specialists you may want to consult as part of your due diligence: land agents, planning consultants and rics surveyors.

Land Agents
Essential for navigating the land market, finding buyers, and securing the best price.

Planning Consultants
Planning-sensitive site needs expert guidance for applications and development strategy.

RICS Surveyors
Prime or productive land requires professional valuation to ensure fair market value.
Location
Penny Hill Road