




0-Acre Field Land for Sale in Lancashire
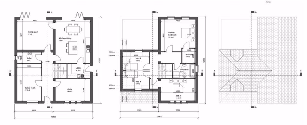
Positioned on one of Scraptoft’s most desirable roads, this prime parcel of land comes with full planning permission for a substantial four-bedroom detached family home measuring approximately 2,200 sqft.Tucked away down a private access road just off the ever-popular Station Lane, the setting offers both privacy and prestige, a hidden gem in a location where opportunities like this are few and far between.The proposed home has been designed to offer generous living accommodation across two floors, with a layout that prioritises family life and modern convenience. The current scheme presents a spacious and well-thought-out design, while also offering excellent scope for further enhancement (subject to additional planning consent), making it ideal for those wishing to future-proof or personalise their forever home.Whether you're looking to build out a dream residence or invest in a sought-after spot with strong resale potential, this plot is a rare find
0-Acre Field Land for Sale in Lancashire
Description
Positioned on one of Scraptoft’s most desirable roads, this prime parcel of land comes with full planning permission for a substantial four-bedroom detached family home measuring approximately 2,200 sqft.Tucked away down a private access road just off the ever-popular Station Lane, the setting offers both privacy and prestige, a hidden gem in a location where opportunities like this are few and far between.The proposed home has been designed to offer generous living accommodation across two floors, with a layout that prioritises family life and modern convenience. The current scheme presents a spacious and well-thought-out design, while also offering excellent scope for further enhancement (subject to additional planning consent), making it ideal for those wishing to future-proof or personalise their forever home.Whether you're looking to build out a dream residence or invest in a sought-after spot with strong resale potential, this plot is a rare find
Contact Agent
Location
LE7