
1/8




+3
more
£95K
1 acres
£95K
Sheerness
1 acres
1.00-Acre Development Land for Sale in Kent
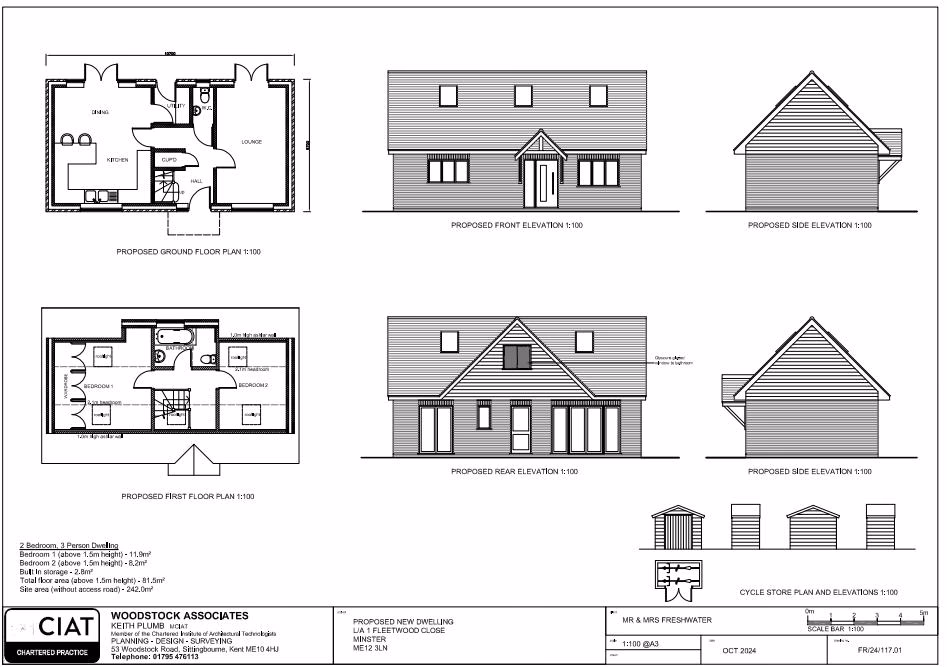
FULL PLANNING PERMISSION GRANTED In the sought after area of Fleetwood Close, Minster On Sea, Sheerness, this exceptional building plot presents a remarkable opportunity for both self-build enthusiasts and developers alike. With full planning permission granted for a two-bedroom, two-sto...
1.00-Acre Development Land for Sale in Kent
1 acres
development
available
freehold
Description
FULL PLANNING PERMISSION GRANTED In the sought after area of Fleetwood Close, Minster On Sea, Sheerness, this exceptional building plot presents a remarkable opportunity for both self-build enthusiasts and developers alike. With full planning permission granted for a two-bedroom, two-sto...
Contact Agent
James Perry Estate Agents, Isle of Sheppey
Smart Picks — Professionals Relevant to This Land
Based on this property's key features, here are the specialists you may want to consult as part of your due diligence: land agents and planning consultants.
Location
Sheerness

