



1.0-Acre Field Land for Sale in Greater Manchester
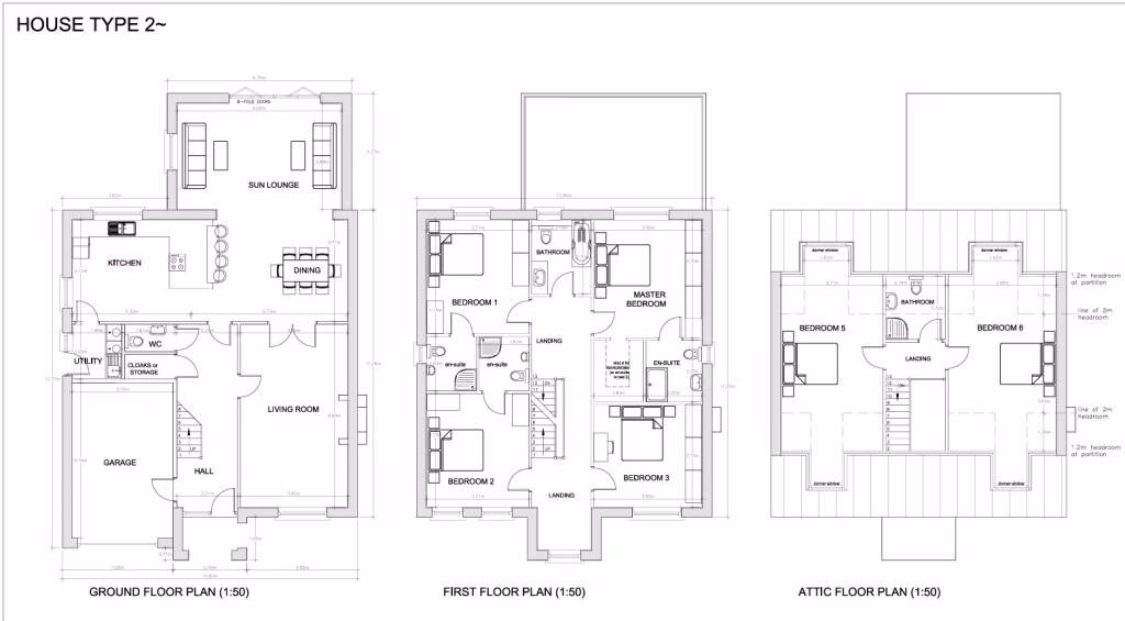
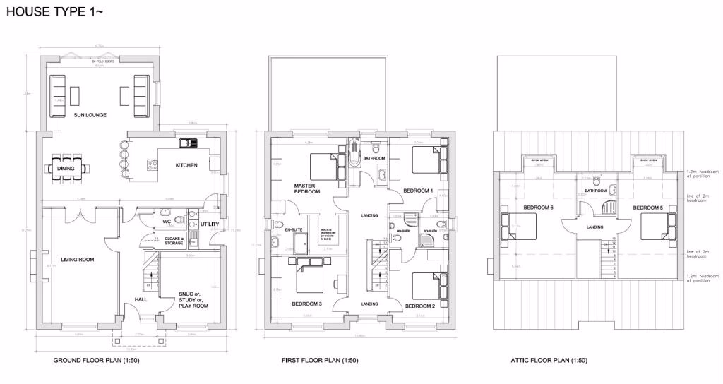
**FABULOUS PLOT OF LAND FOR SALE IN LOSTOCK** Three Building Plots - Planning Approved for Large Detached Dwellings Over 3000 sq ft - Option to Change Planning - Access Installed Already - Sought After Location
1.0-Acre Field Land for Sale in Greater Manchester
Description
**FABULOUS PLOT OF LAND FOR SALE IN LOSTOCK** Three Building Plots - Planning Approved for Large Detached Dwellings Over 3000 sq ft - Option to Change Planning - Access Installed Already - Sought After Location
Contact Agent
Smart Picks — Professionals Relevant to This Land
Based on this property's key features, here are the specialists you may want to consult as part of your due diligence: land agents, rics surveyors, rural solicitors, planning consultants and land consultants.

Land Agents
Essential for navigating the land market, finding buyers, and securing the best price.

RICS Surveyors
High-value property (£900K+) requires professional valuation for accurate pricing and due diligence.

Rural Solicitors
Significant investment (£900K+) requires legal expertise for conveyancing, title checks, and transaction security.

Planning Consultants
Planning-sensitive site needs expert guidance for applications and development strategy.

Land Consultants
Extensive landholding needs strategic consultation for development potential and long-term value.
Location
BL1