




1-Acre Development Land for Sale in East Sussex
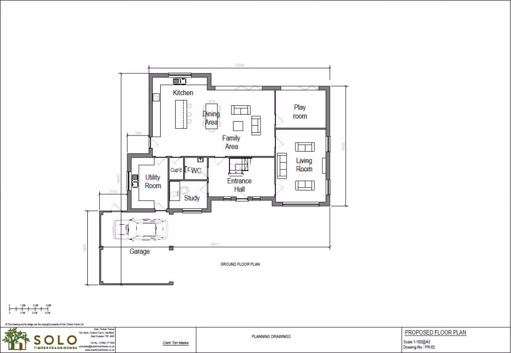
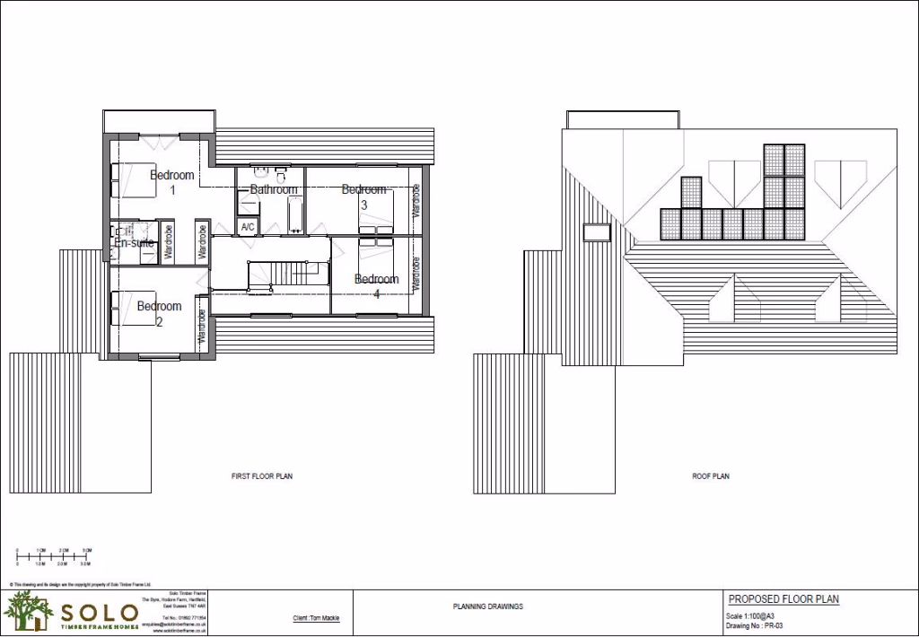
DEVELOPMENT OPPORTUNITY A SUBSTANTIAL PLOT WITH AN ADJOINING SECONDARY SMALLER SEPARTATE PLOT AVAILABLE WITH PLANNING PERMISSION FOR A LARGE TWO STOREY DETACHED DWELLING WITH SUBSTANTIAL GARDENS.PLANNING CAN BE VIEWED ON THE LEWES DSTRICT WEBSITE UNDER THE PLANNING APPLICATION Ref. No: LW/23/0187The is land is situated on top of the South Downs with bridle/footpaths radiating from its entrance gates. Surrounding views including Peacehaven, Seaford Head, Firle Beacon. Stunning and dramatic countryside. The plot is situated in approx. 1 acre plot opposite the South Downs National Park. Peacehaven is only 8 miles away from Brighton where the frequent commuter trains to London take 52 minutes. Brighton has a marina, shops and restaurants. Peacehaven is also close to Newhaven where you can travel via ferry to Dieppe, France.The proposed property will comprises of a Study, Inner Hall, Lounge, Kitchen/Dining Room, Playroom/Bedroom Five, Utility Room, Four Bedrooms, Ensuite and Family Bathroom, Double Garage and Parking. Furthermore, there will be Substantial South Facing Gardens
1-Acre Development Land for Sale in East Sussex
Description
DEVELOPMENT OPPORTUNITY A SUBSTANTIAL PLOT WITH AN ADJOINING SECONDARY SMALLER SEPARTATE PLOT AVAILABLE WITH PLANNING PERMISSION FOR A LARGE TWO STOREY DETACHED DWELLING WITH SUBSTANTIAL GARDENS.PLANNING CAN BE VIEWED ON THE LEWES DSTRICT WEBSITE UNDER THE PLANNING APPLICATION Ref. No: LW/23/0187The is land is situated on top of the South Downs with bridle/footpaths radiating from its entrance gates. Surrounding views including Peacehaven, Seaford Head, Firle Beacon. Stunning and dramatic countryside. The plot is situated in approx. 1 acre plot opposite the South Downs National Park. Peacehaven is only 8 miles away from Brighton where the frequent commuter trains to London take 52 minutes. Brighton has a marina, shops and restaurants. Peacehaven is also close to Newhaven where you can travel via ferry to Dieppe, France.The proposed property will comprises of a Study, Inner Hall, Lounge, Kitchen/Dining Room, Playroom/Bedroom Five, Utility Room, Four Bedrooms, Ensuite and Family Bathroom, Double Garage and Parking. Furthermore, there will be Substantial South Facing Gardens
Contact Agent
Smart Picks — Professionals Relevant to This Land
Based on this property's key features, here are the specialists you may want to consult as part of your due diligence: land agents, rural solicitors, planning consultants, land consultants and rics surveyors.

Land Agents
Essential for navigating the land market, finding buyers, and securing the best price.

Rural Solicitors
Significant investment (£275K+) requires legal expertise for conveyancing, title checks, and transaction security.

Planning Consultants
Planning-sensitive site needs expert guidance for applications and development strategy.

Land Consultants
Extensive landholding needs strategic consultation for development potential and long-term value.

RICS Surveyors
Prime or productive land requires professional valuation to ensure fair market value.
Location
The