




0.05-Acre Development Land for Sale in Cumbria
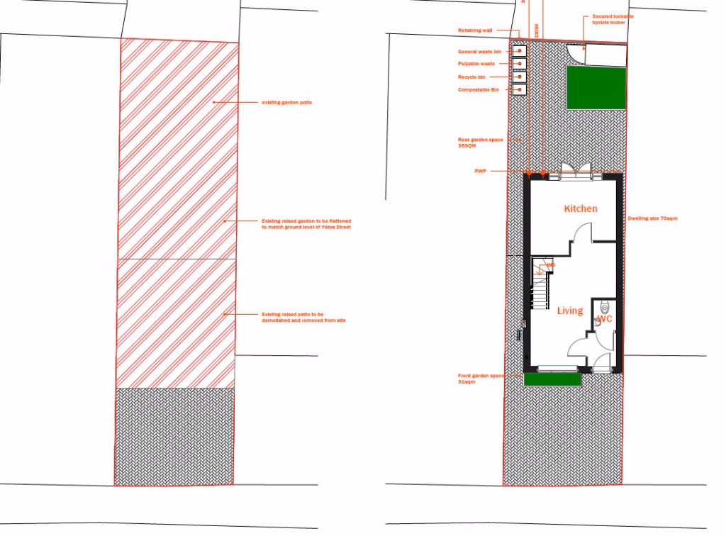
*CALLING ALL DEVELOPERS, BUILDERS AND INVESTORS*We are delighted to introduce to the market this Fantastic opportunity for those looking to invest in a prime piece of freehold land. The land is sold with planning permission for the construction of a two-bedroom detached home, with all S106 agreements finalised, allowing for a seamless transition into the building phase. This makes it an ideal prospect for developers or individuals seeking to create their dream residence in a highly sought-after area.Being just a stones throw from Stockport Town Centre, the land offers a fantastic investment for such a project. Furthermore, the excellent transport links via the M60 ensure that commuting to nearby cities is both convenient and efficient, making this location particularly appealing for families and professionals alike.Contact our office on to register your interest and to arrange an accompanied viewing. Freehold.
0.05-Acre Development Land for Sale in Cumbria
Description
*CALLING ALL DEVELOPERS, BUILDERS AND INVESTORS*We are delighted to introduce to the market this Fantastic opportunity for those looking to invest in a prime piece of freehold land. The land is sold with planning permission for the construction of a two-bedroom detached home, with all S106 agreements finalised, allowing for a seamless transition into the building phase. This makes it an ideal prospect for developers or individuals seeking to create their dream residence in a highly sought-after area.Being just a stones throw from Stockport Town Centre, the land offers a fantastic investment for such a project. Furthermore, the excellent transport links via the M60 ensure that commuting to nearby cities is both convenient and efficient, making this location particularly appealing for families and professionals alike.Contact our office on to register your interest and to arrange an accompanied viewing. Freehold.
Contact Agent
Location
Yates