



Development Land in High Street for Sale - £69,950
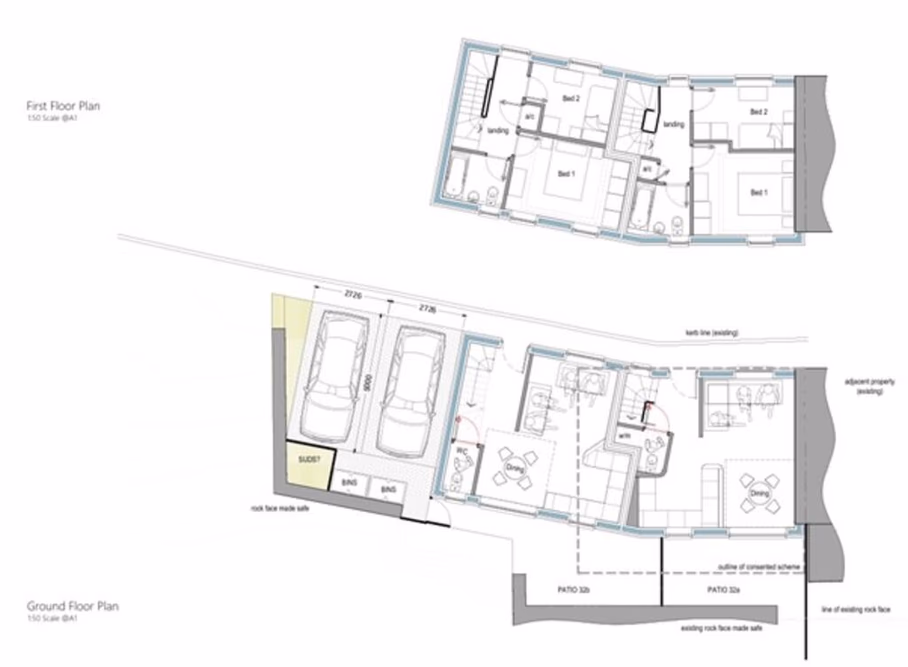
**LAND IN LLANHILLETH WITH PLANNING FOR 2 PROPERTIES** - Martin & Co are pleased to bring to the market this plot of land in the heart of Abertillery. The plot has fully granted planning permission for 2 bedroom houses which would make a great investment. It also has the option to convert and...
Development Land in High Street for Sale - £69,950
Description
**LAND IN LLANHILLETH WITH PLANNING FOR 2 PROPERTIES** - Martin & Co are pleased to bring to the market this plot of land in the heart of Abertillery. The plot has fully granted planning permission for 2 bedroom houses which would make a great investment. It also has the option to convert and...
Contact Agent
Smart Picks — Professionals Relevant to This Land
Based on this property's key features, here are the specialists you may want to consult as part of your due diligence: land agents and planning consultants.
Location
High Street

