Property Image 1
1/4
£200K
Size not specified

Plot for sale

Size not specified
development
available
freehold

Description

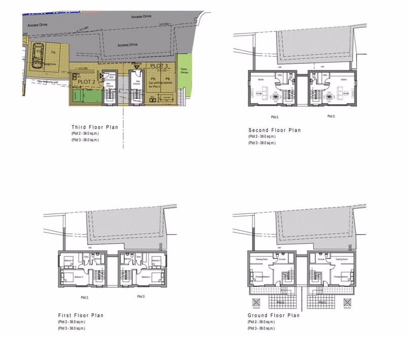
This prime development site, located just off Ramsden Street in Wheatley, Halifax, comes with approved planning permission for three detached homes. Providing an excellent opportunity for developers or investors, the site is conveniently positioned close to local amenities and transport links.

Contact Agent

Reloc8 Properties, West Yorkshire

Location

Ramsden Street

Plot for sale - £200K | Development for Sale