
1/7




+2
more
£60K
Size not specified
£60K
Grosvenor Place
Size not specified
Plot for sale
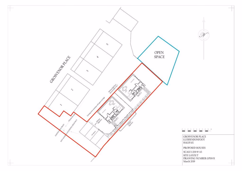
Peter David Halifax are delighted to offer this building plot with planning approval to build two three bedroom detached properties. Full details can be found here on the Calderdale Planning Portal - Planning application 19/00395/FUL
Plot for sale
Size not specified
development
available
freehold
Description
Peter David Halifax are delighted to offer this building plot with planning approval to build two three bedroom detached properties. Full details can be found here on the Calderdale Planning Portal - Planning application 19/00395/FUL
Contact Agent
Peter David Properties, Halifax
Smart Picks — Professionals Relevant to This Land
Based on this property's key features, here are the specialists you may want to consult as part of your due diligence: land agents and planning consultants.
Location
Grosvenor Place

