

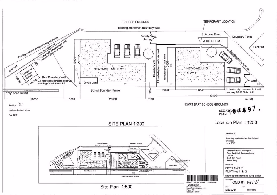
Plot for sale
We're delighted to offer for sale this substantial plot with full planning permission located in Cwrt Sart, Neath. The property will be a detached 5 bedroom executive spacious family home - mirror image of Cwrt Y Chapel. Planning reference number is P/2006/0312. Call for more information. CTFDL.
Plot for sale
Description
We're delighted to offer for sale this substantial plot with full planning permission located in Cwrt Sart, Neath. The property will be a detached 5 bedroom executive spacious family home - mirror image of Cwrt Y Chapel. Planning reference number is P/2006/0312. Call for more information. CTFDL.
Contact Agent
Smart Picks — Professionals Relevant to This Land
Based on this property's key features, here are the specialists you may want to consult as part of your due diligence: land agents, planning consultants and land consultants.

Land Agents
Essential for navigating the land market, finding buyers, and securing the best price.

Planning Consultants
Planning-sensitive site needs expert guidance for applications and development strategy.

Land Consultants
Extensive landholding needs strategic consultation for development potential and long-term value.
Location
Cwrt Sart