


1.75-Acre Field Land for Sale in Warwickshire
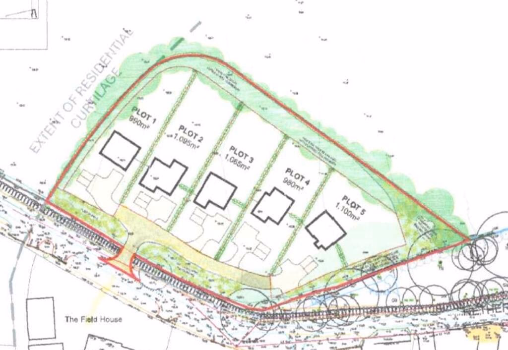
Rare opportunity to purchase a 1.75 acre plot on Netherwood Lane with planning permission for five dwellings. Ideal for self-builders or investors seeking to create a bespoke residential enclave.....
1.75-Acre Field Land for Sale in Warwickshire
Description
Rare opportunity to purchase a 1.75 acre plot on Netherwood Lane with planning permission for five dwellings. Ideal for self-builders or investors seeking to create a bespoke residential enclave.....
Contact Agent
Smart Picks — Professionals Relevant to This Land
Based on this property's key features, here are the specialists you may want to consult as part of your due diligence: land agents, rics surveyors, rural solicitors and planning consultants.

Land Agents
Essential for navigating the land market, finding buyers, and securing the best price.

RICS Surveyors
High-value property (£2500K+) requires professional valuation for accurate pricing and due diligence.

Rural Solicitors
Significant investment (£2500K+) requires legal expertise for conveyancing, title checks, and transaction security.

Planning Consultants
Planning-sensitive site needs expert guidance for applications and development strategy.
Location
B93