



Plot for sale - 0.9 Acres
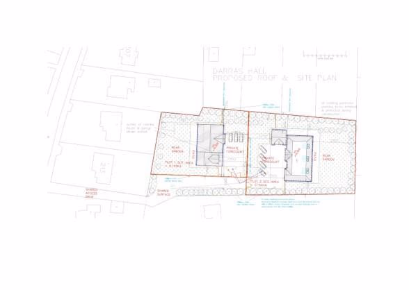
Development Opportunity, Two Plots Available CIRCA 0.93 Acre Combined, Demolition Order Granted For Existing Bungalow, Plot 1 Proposed Property Approximately 4290sq Ft, Plot 2 Proposed Property Approximately 7437sq Ft Plus Annexe 557sq Ft. This excellent development opportunity is situa...
Plot for sale - 0.9 Acres
Description
Development Opportunity, Two Plots Available CIRCA 0.93 Acre Combined, Demolition Order Granted For Existing Bungalow, Plot 1 Proposed Property Approximately 4290sq Ft, Plot 2 Proposed Property Approximately 7437sq Ft Plus Annexe 557sq Ft. This excellent development opportunity is situa...
Contact Agent
Smart Picks — Professionals Relevant to This Land
Based on this property's key features, here are the specialists you may want to consult as part of your due diligence: land agents, rics surveyors, rural solicitors and land consultants.

Land Agents
Essential for navigating the land market, finding buyers, and securing the best price.

RICS Surveyors
High-value property (£1200K+) requires professional valuation for accurate pricing and due diligence.

Rural Solicitors
Significant investment (£1200K+) requires legal expertise for conveyancing, title checks, and transaction security.

Land Consultants
Multiple parcels or complex land structure requires expert analysis for optimal development strategy.
Location
Western Way