Land for sale - Image 1
1/4
£180K
1 acres

1.00-Acre Development Land for Sale in Surrey

1 acres
development
available
freehold

Description

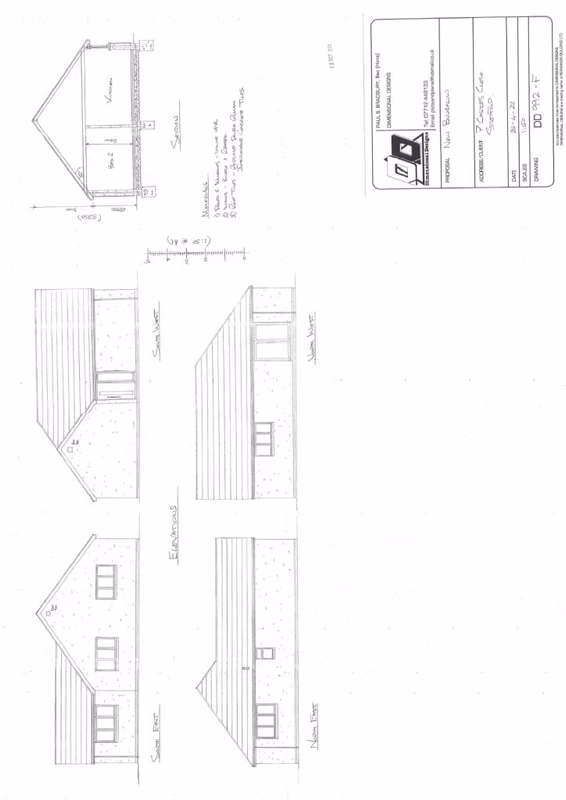
A rarely available single building plot with planning permission for a two-bedroom detached bungalow (CB/22/03992/FULL). Ideal for a small local builder!

Contact Agent

Wellington Evans, Hitchin

Location

Unknown

Land Finance Calculator

Calculate your land purchase financing

£
£
%

Land lenders typically require 20-30% deposit

%
Years

Choose between 1 and 40 years

Monthly Repayment
£0
Total Amount
£0
Total Interest
£0

These results are estimates and are only intended as a guide. Land financing terms vary significantly by lender and property type. Make sure you obtain accurate figures from your lender before committing to any land purchase. Land loans typically have higher interest rates and shorter terms than residential mortgages.

More Land in Surrey

Own Land in Surrey?

List your land for free and connect with serious buyers looking for properties in your area. Join thousands of landowners who have successfully sold through Landlister.

First Listing Free

No upfront costs or hidden fees

Quick Setup

Live in minutes with our simple form

Reach Buyers

Connect with qualified land buyers

No listing fees
Instant publishing
Professional support

Frequently Asked Questions

Common questions about buying land and the purchasing process.

Need More Information?

Contact the listing agent for specific details about this property, viewing arrangements, or any other questions you may have.