



1.00-Acre Development Land for Sale in Surrey
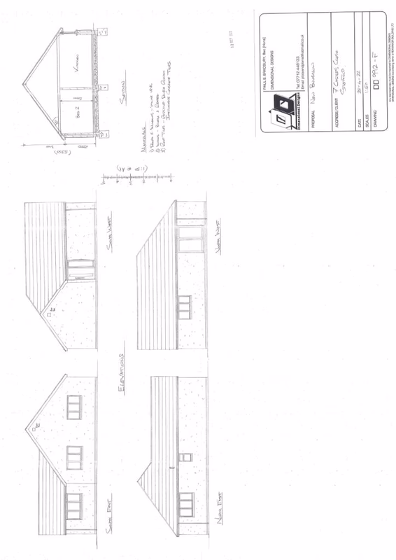
A rarely available single building plot with planning permission for a two-bedroom detached bungalow (CB/22/03992/FULL). Ideal for a small local builder!
1.00-Acre Development Land for Sale in Surrey
Description
A rarely available single building plot with planning permission for a two-bedroom detached bungalow (CB/22/03992/FULL). Ideal for a small local builder!
Contact Agent
Location
Unknown
Land Finance Calculator
Calculate your land purchase financing
Land lenders typically require 20-30% deposit
Choose between 1 and 40 years
These results are estimates and are only intended as a guide. Land financing terms vary significantly by lender and property type. Make sure you obtain accurate figures from your lender before committing to any land purchase. Land loans typically have higher interest rates and shorter terms than residential mortgages.
More Land in Surrey
Own Land in Surrey?
List your land for free and connect with serious buyers looking for properties in your area. Join thousands of landowners who have successfully sold through Landlister.
First Listing Free
No upfront costs or hidden fees
Quick Setup
Live in minutes with our simple form
Reach Buyers
Connect with qualified land buyers
Frequently Asked Questions
Common questions about buying land and the purchasing process.
Need More Information?
Contact the listing agent for specific details about this property, viewing arrangements, or any other questions you may have.