




Plot for sale - 0 Acres
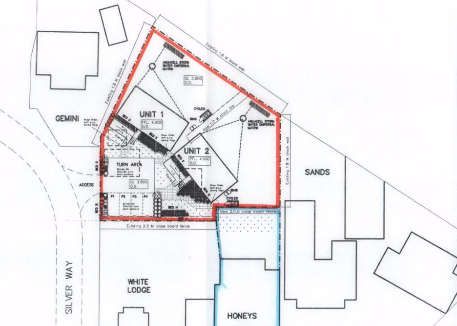
Development plot with planning permission for no.2 three bedroom bungalows, set in a private location a short distance from the beach and waterfront.
Plot for sale - 0 Acres
Description
Development plot with planning permission for no.2 three bedroom bungalows, set in a private location a short distance from the beach and waterfront.
Contact Agent
Smart Picks — Professionals Relevant to This Land
Based on this property's key features, here are the specialists you may want to consult as part of your due diligence: land agents, rics surveyors, rural solicitors and planning consultants.

Land Agents
Essential for navigating the land market, finding buyers, and securing the best price.

RICS Surveyors
High-value property (£500K+) requires professional valuation for accurate pricing and due diligence.

Rural Solicitors
Significant investment (£500K+) requires legal expertise for conveyancing, title checks, and transaction security.

Planning Consultants
Planning-sensitive site needs expert guidance for applications and development strategy.
Location
East Bracklesham Drive