Property Image 1
1/7
£250K
Size not specified

Plot for sale

Size not specified
development
available
freehold

Description

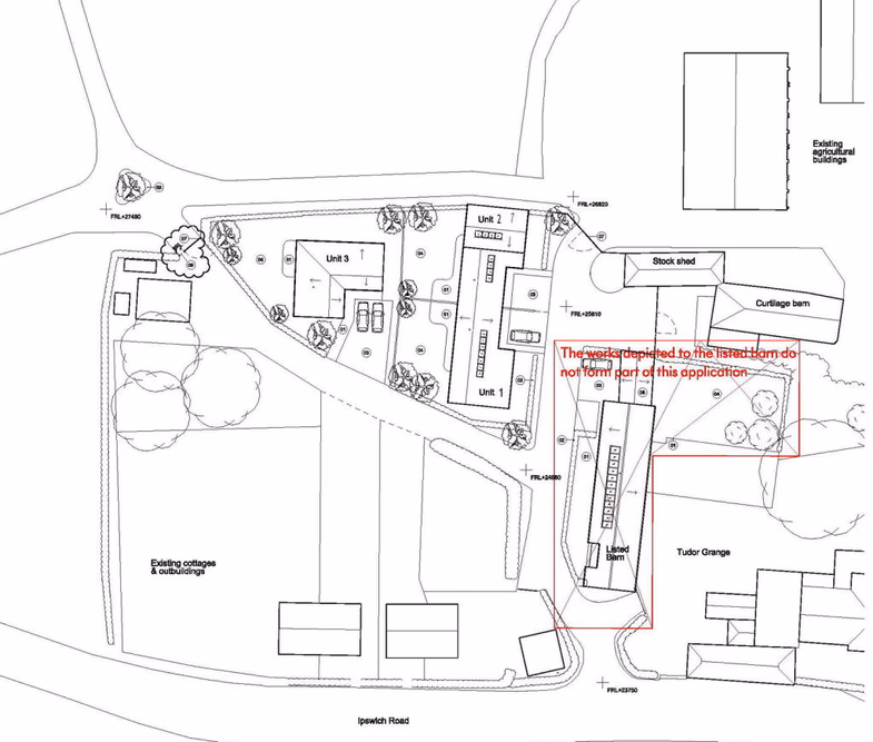
A development site with planning permission for the erection of three new dwellings just outside the village of Somersham.      

Contact Agent

Clarke and Simpson, Framlingham

Location

Between Nettlestead & Somersham