




Plot for sale
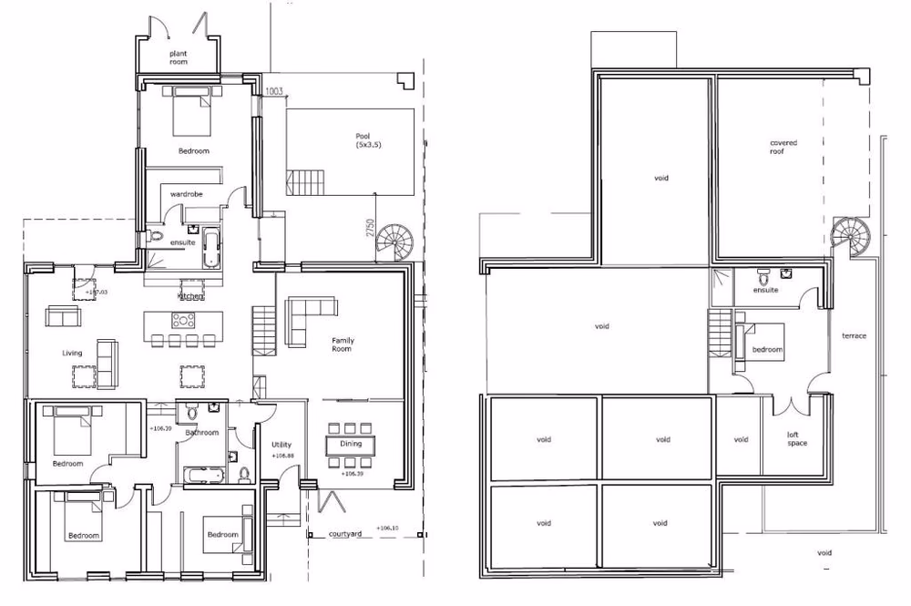
Set within an exclusive rural courtyard on the picturesque borders of Abbots Bromley and Newborough is this outstanding self-build/development opportunity, with full permission granted for a fabulous five bedroom family home with open plan living and a swimming pool. Being offering with no upward...
Plot for sale
Description
Set within an exclusive rural courtyard on the picturesque borders of Abbots Bromley and Newborough is this outstanding self-build/development opportunity, with full permission granted for a fabulous five bedroom family home with open plan living and a swimming pool. Being offering with no upward...
Contact Agent
Smart Picks — Professionals Relevant to This Land
Based on this property's key features, here are the specialists you may want to consult as part of your due diligence: land agents, rural solicitors, planning consultants and rics surveyors.

Land Agents
Essential for navigating the land market, finding buyers, and securing the best price.

Rural Solicitors
Significant investment (£300K+) requires legal expertise for conveyancing, title checks, and transaction security.

Planning Consultants
Planning-sensitive site needs expert guidance for applications and development strategy.

RICS Surveyors
Prime or productive land requires professional valuation to ensure fair market value.
Location
Development Opportunity at Parkgate Lane