


Development Land in Tithe Laithe for Sale - £300,000
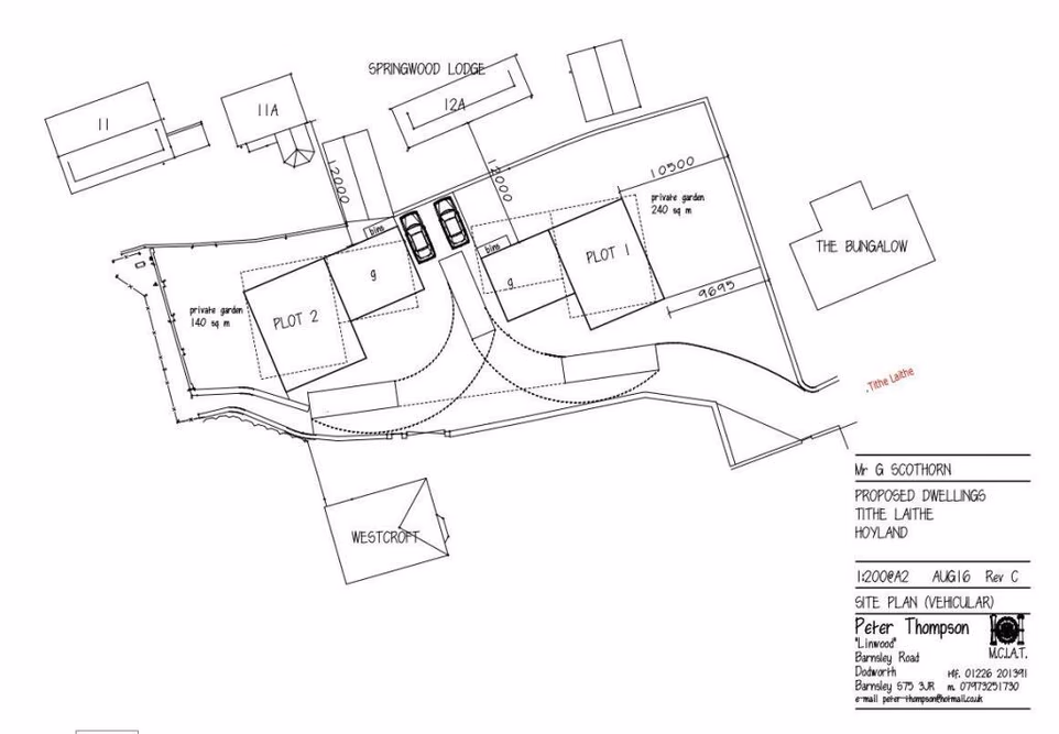
Welcome to Tithe Laithe, Hoyland, Barnsley - a truly exceptional opportunity for those looking to create their dream home in a picturesque location. This building plot offers not just one, but two unique four-bedroom detached properties. Situated in a private development, this plot comes...
Development Land in Tithe Laithe for Sale - £300,000
Description
Welcome to Tithe Laithe, Hoyland, Barnsley - a truly exceptional opportunity for those looking to create their dream home in a picturesque location. This building plot offers not just one, but two unique four-bedroom detached properties. Situated in a private development, this plot comes...
Contact Agent
Smart Picks — Professionals Relevant to This Land
Based on this property's key features, here are the specialists you may want to consult as part of your due diligence: land agents, rural solicitors and rics surveyors.

Land Agents
Essential for navigating the land market, finding buyers, and securing the best price.

Rural Solicitors
Significant investment (£300K+) requires legal expertise for conveyancing, title checks, and transaction security.

RICS Surveyors
Prime or productive land requires professional valuation to ensure fair market value.
Location
Tithe Laithe