
1/7




+2
more
£90K
Size not specified
£90K
Single buildiing plot Manchester Road Stocksbridge
Size not specified
Development Land in Single buildiing plot Manchester Road Stocksbridge for Sale - £90,000
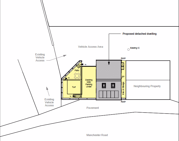
BUILDING PLOT WITH CONSENT FOR DEMOLITION OF EXISTING BUILDING PLUS ERECTION OF ONE DWELLING HOUSE WITH GARDEN AREA AND PARKING PROVISION
Development Land in Single buildiing plot Manchester Road Stocksbridge for Sale - £90,000
Size not specified
development
available
freehold
Description
BUILDING PLOT WITH CONSENT FOR DEMOLITION OF EXISTING BUILDING PLUS ERECTION OF ONE DWELLING HOUSE WITH GARDEN AREA AND PARKING PROVISION
Contact Agent
Butcher Residential Ltd, Penistone
Smart Picks — Professionals Relevant to This Land
Based on this property's key features, here are the specialists you may want to consult as part of your due diligence: land agents and planning consultants.
Location
Single buildiing plot Manchester Road Stocksbridge

