




1.00-Acre Development Land for Sale in Somerset
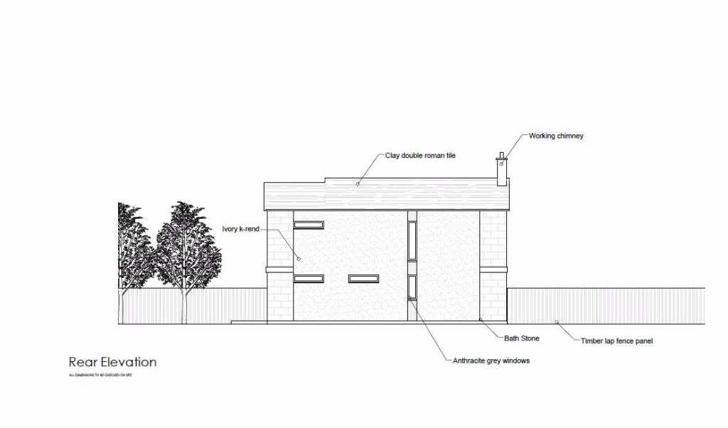
An exciting opportunity to acquire a prime residential plot with full planning permission (ref: 19/04314/FUL) for a beautifully designed three-bedroom detached home. The development benefits from a generous side garden, along with two off-road parking spaces.
1.00-Acre Development Land for Sale in Somerset
Description
An exciting opportunity to acquire a prime residential plot with full planning permission (ref: 19/04314/FUL) for a beautifully designed three-bedroom detached home. The development benefits from a generous side garden, along with two off-road parking spaces.
Contact Agent
Location
Bath
Land Finance Calculator
Calculate your land purchase financing
Land lenders typically require 20-30% deposit
Choose between 1 and 40 years
These results are estimates and are only intended as a guide. Land financing terms vary significantly by lender and property type. Make sure you obtain accurate figures from your lender before committing to any land purchase. Land loans typically have higher interest rates and shorter terms than residential mortgages.
More Land in Somerset
Own Land in Somerset?
List your land for free and connect with serious buyers looking for properties in your area. Join thousands of landowners who have successfully sold through Landlister.
First Listing Free
No upfront costs or hidden fees
Quick Setup
Live in minutes with our simple form
Reach Buyers
Connect with qualified land buyers
Frequently Asked Questions
Common questions about buying land and the purchasing process.
Need More Information?
Contact the listing agent for specific details about this property, viewing arrangements, or any other questions you may have.