




Plot for sale - 1.6 Acres
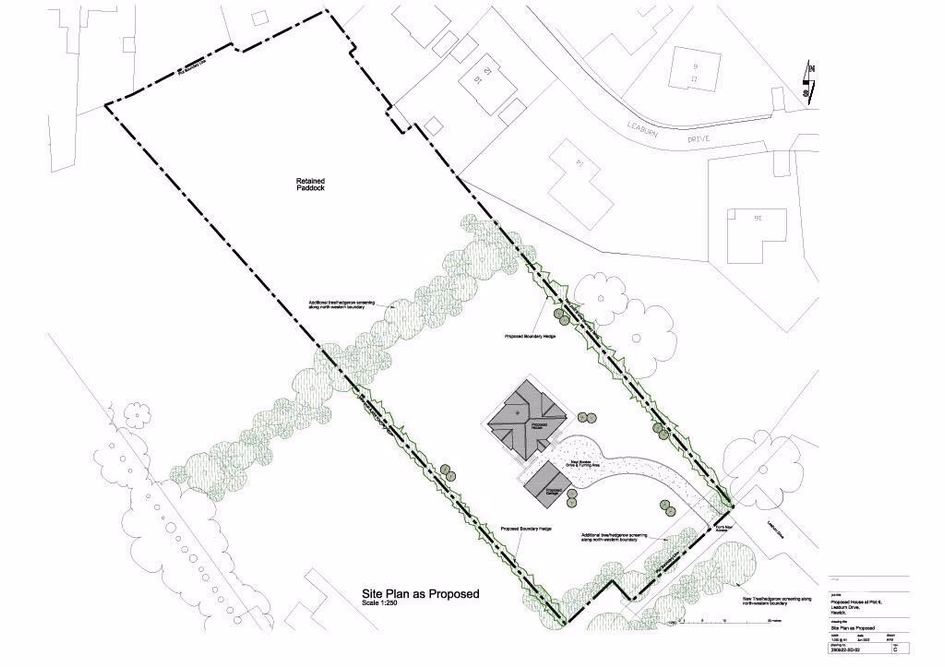
We are delighted to bring to market this large building plot of approximately 1.6 Acres, located in an elevated position at the top of Leaburn Drive in Hawick. The site benefits from stunning views over the town and surrounding countryside and is available for sale with full planning permission t...
Plot for sale - 1.6 Acres
Description
We are delighted to bring to market this large building plot of approximately 1.6 Acres, located in an elevated position at the top of Leaburn Drive in Hawick. The site benefits from stunning views over the town and surrounding countryside and is available for sale with full planning permission t...
Contact Agent
Smart Picks — Professionals Relevant to This Land
Based on this property's key features, here are the specialists you may want to consult as part of your due diligence: land agents, planning consultants and land consultants.

Land Agents
Essential for navigating the land market, finding buyers, and securing the best price.

Planning Consultants
Planning-sensitive site needs expert guidance for applications and development strategy.

Land Consultants
Extensive landholding needs strategic consultation for development potential and long-term value.
Location
Leaburn Drive