




Plot for sale - 0.2 Acres
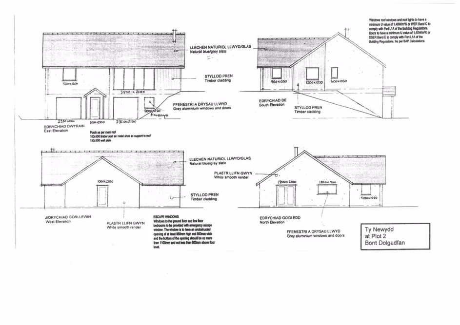
Residential Building Plot with Full Planning for One Dwelling in pretty village of Bont Dolgadfan. Contemporary split level design. Site extending to around 0.19 acres. Foundations & Retaining Walls built. Mains services available nearby. Newtown 18 miles, Machynlleth 11 miles. Elevated posi...
Plot for sale - 0.2 Acres
Description
Residential Building Plot with Full Planning for One Dwelling in pretty village of Bont Dolgadfan. Contemporary split level design. Site extending to around 0.19 acres. Foundations & Retaining Walls built. Mains services available nearby. Newtown 18 miles, Machynlleth 11 miles. Elevated posi...
Contact Agent
Smart Picks — Professionals Relevant to This Land
Based on this property's key features, here are the specialists you may want to consult as part of your due diligence: land agents and planning consultants.
Location
Land Adjacent Maes Awel

