
1/5




£500K
1 acres
£500K
Development Land
1 acres
1 Acre Development Land in Development Land for Sale - £500,000
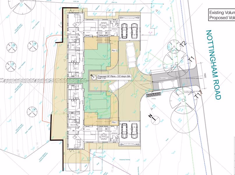
Two Detached Self Build Bungalow Plots with Detailed Planning Permission. A unique opportunity for an individual or developer to acquire two self-build plots. Located within a sought after village location with planning to create a private development of two contemporary style detached b...
1 Acre Development Land in Development Land for Sale - £500,000
1 acres
development
available
freehold
Description
Two Detached Self Build Bungalow Plots with Detailed Planning Permission. A unique opportunity for an individual or developer to acquire two self-build plots. Located within a sought after village location with planning to create a private development of two contemporary style detached b...
Contact Agent
Perkins George Mawer & Co., Market Rasen
Location
Development Land