




3.31-Acre Field Land for Sale in Northumberland
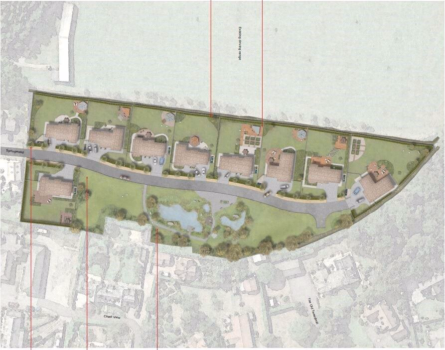
Bradley Hall is delighted to offer this opportunity to create an exclusive residential development opportunity of 9 detached executive dwellings. LOCATION The site is located in the quaint village of Swarland located to the south of Alnwick in the glorious Northumberland Countrysi...
3.31-Acre Field Land for Sale in Northumberland
Description
Bradley Hall is delighted to offer this opportunity to create an exclusive residential development opportunity of 9 detached executive dwellings. LOCATION The site is located in the quaint village of Swarland located to the south of Alnwick in the glorious Northumberland Countrysi...
Contact Agent
Smart Picks — Professionals Relevant to This Land
Based on this property's key features, here are the specialists you may want to consult as part of your due diligence: land agents, rics surveyors and rural solicitors.

Land Agents
Essential for navigating the land market, finding buyers, and securing the best price.

RICS Surveyors
High-value property (£1150K+) requires professional valuation for accurate pricing and due diligence.

Rural Solicitors
Significant investment (£1150K+) requires legal expertise for conveyancing, title checks, and transaction security.
Location
NE65