




Development Land in Belmont for Sale - £370,000
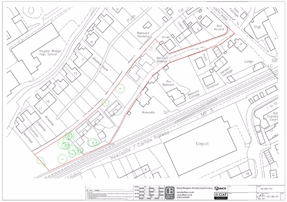
Brunton Residential are delighted to offer for sale this excellent residential housing development site, which offers granted planning permission for the construction of six, bespoke, energy efficient residential dwellings. The site is perfectly located just off from North Bank, and is...
Development Land in Belmont for Sale - £370,000
Description
Brunton Residential are delighted to offer for sale this excellent residential housing development site, which offers granted planning permission for the construction of six, bespoke, energy efficient residential dwellings. The site is perfectly located just off from North Bank, and is...
Contact Agent
Smart Picks — Professionals Relevant to This Land
Based on this property's key features, here are the specialists you may want to consult as part of your due diligence: land agents, rics surveyors, rural solicitors and planning consultants.

Land Agents
Essential for navigating the land market, finding buyers, and securing the best price.

RICS Surveyors
High-value property (£370K+) requires professional valuation for accurate pricing and due diligence.

Rural Solicitors
Significant investment (£370K+) requires legal expertise for conveyancing, title checks, and transaction security.

Planning Consultants
Planning-sensitive site needs expert guidance for applications and development strategy.
Location
Belmont