



0.73-Acre Field Land for Sale in North Yorkshire
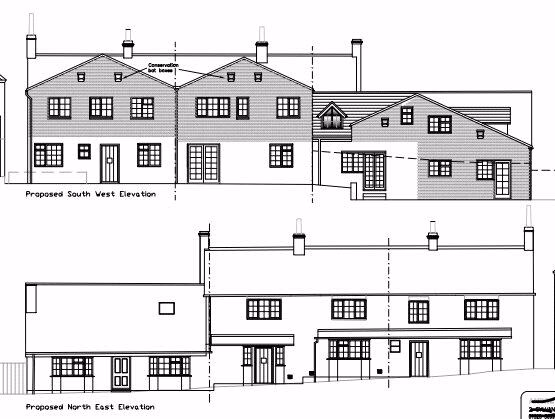
PUBLIC HOUSE AND LAND Bridgfords are pleased to offer for Sale the Arden Arms (recently closed). Set in this idylic North Yorkshire Village. Potential here to add value STNPP. Planning Ref: ZB23/00920/FUL (Pending) 0.73 Acres 815.12 FT Perimiter. Road side frontage. <...
0.73-Acre Field Land for Sale in North Yorkshire
Description
PUBLIC HOUSE AND LAND Bridgfords are pleased to offer for Sale the Arden Arms (recently closed). Set in this idylic North Yorkshire Village. Potential here to add value STNPP. Planning Ref: ZB23/00920/FUL (Pending) 0.73 Acres 815.12 FT Perimiter. Road side frontage. <...
Contact Agent
Smart Picks — Professionals Relevant to This Land
Based on this property's key features, here are the specialists you may want to consult as part of your due diligence: land agents, rics surveyors, rural solicitors and planning consultants.

Land Agents
Essential for navigating the land market, finding buyers, and securing the best price.

RICS Surveyors
High-value property (£750K+) requires professional valuation for accurate pricing and due diligence.

Rural Solicitors
Significant investment (£750K+) requires legal expertise for conveyancing, title checks, and transaction security.

Planning Consultants
Planning-sensitive site needs expert guidance for applications and development strategy.
Location
DL7