Property Image 1
1/5
£495K
Size not specified

Plot for sale

Size not specified
development
available
freehold

Description

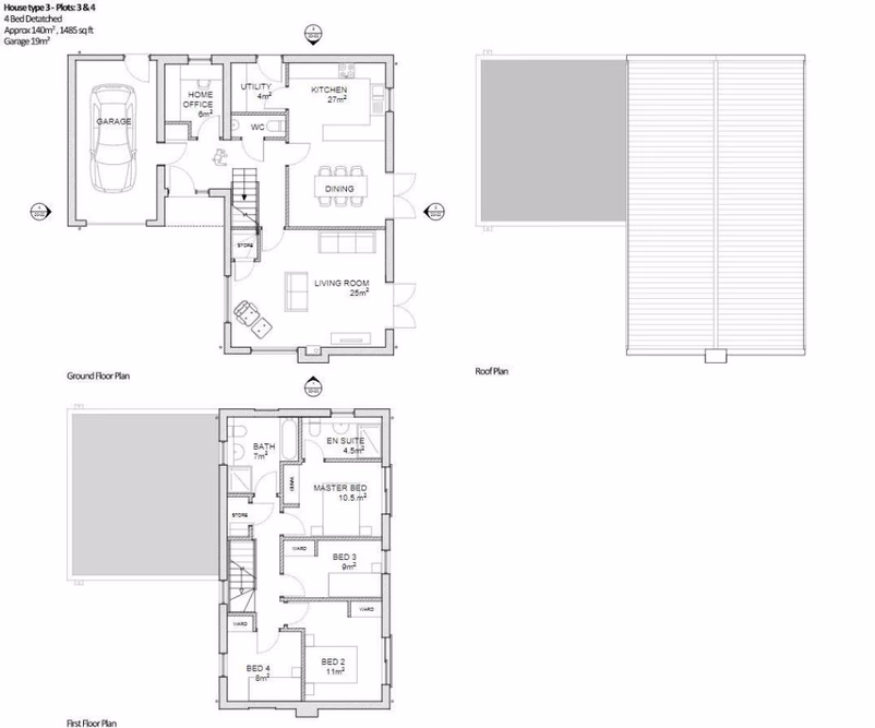
This site, in the attractive village of Caston, approximately 18 miles south west of Norwich and 7 miles north west of Attleborough has good access to the A11 tech corridor. The site is generally level and ready for development shortly, subject to the approval of all reserved matters. Offering pl...

Contact Agent

Arnolds Keys, Norwich

Location

The Street

Plot for sale - £495K | Development for Sale