


1.0-Acre Coastal Land for Sale in Norfolk
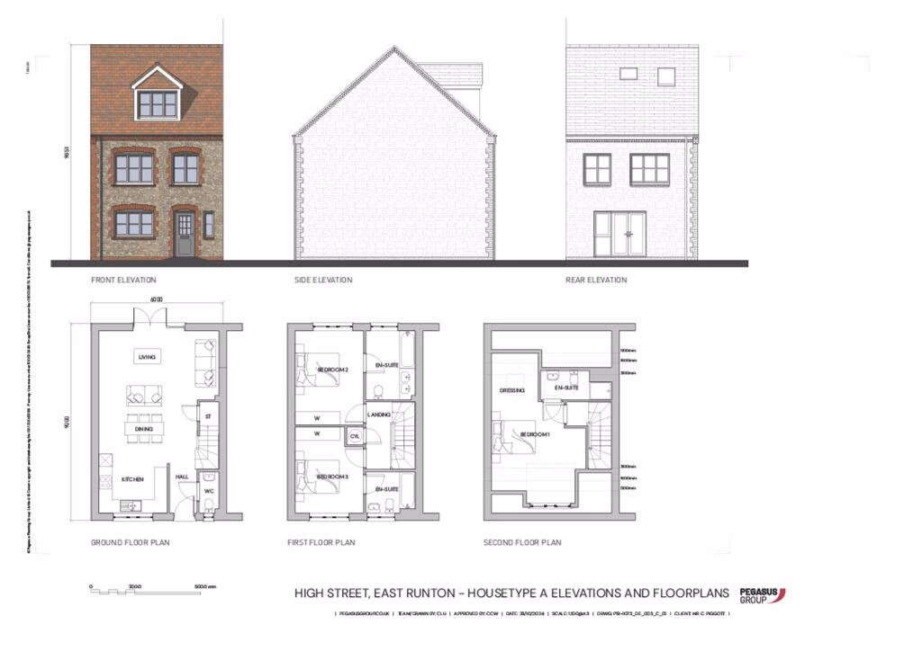
RARE BUILDING PLOT in the popular village of East Runton with FULL PLANNING PERMISSION for four 3-bedroom semi-detached homes. Ideal INVESTMENT OPPORTUNITY in a charming coastal village.
1.0-Acre Coastal Land for Sale in Norfolk
Description
RARE BUILDING PLOT in the popular village of East Runton with FULL PLANNING PERMISSION for four 3-bedroom semi-detached homes. Ideal INVESTMENT OPPORTUNITY in a charming coastal village.
Contact Agent
Smart Picks — Professionals Relevant to This Land
Based on this property's key features, here are the specialists you may want to consult as part of your due diligence: land agents, rics surveyors, rural solicitors and planning consultants.

Land Agents
Essential for navigating the land market, finding buyers, and securing the best price.

RICS Surveyors
High-value property (£795K+) requires professional valuation for accurate pricing and due diligence.

Rural Solicitors
Significant investment (£795K+) requires legal expertise for conveyancing, title checks, and transaction security.

Planning Consultants
Planning-sensitive site needs expert guidance for applications and development strategy.
Location
NR27