Property Image 1
1/7
£175K
Size not specified

Development Land in Breckfield Road North for Sale - £175,000

Size not specified
development
available
freehold

Description

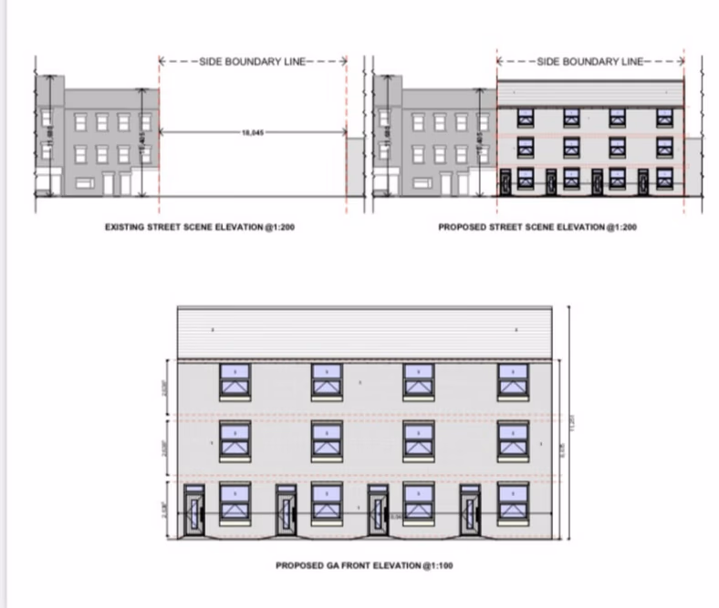
Tyron Ash International Real Estate is pleased to present and exciting opportunity to purchase Land that's has planning permission to erect a 3-storey building, the planning was approved on 26th January 2023

Contact Agent

Tyron Ash International Real Estate, London

Location

Breckfield Road North