




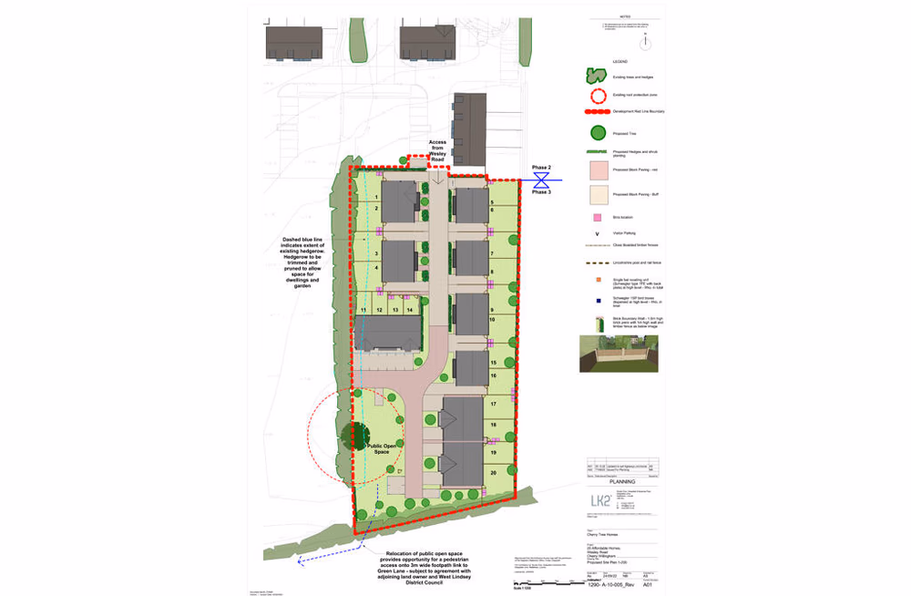
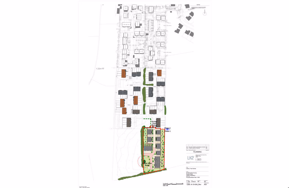
1.1 Acres Land in Residential Development Site for Sale - £400,000
A level regular shaped parcel of land - Extending to 1.14 acres - North Western edge of the popular village - Full Planning 20 affordable residential units - Subject to completion of S.106 Agreement - Adjacent to a completed residential scheme
1.1 Acres Land in Residential Development Site for Sale - £400,000
Description
A level regular shaped parcel of land - Extending to 1.14 acres - North Western edge of the popular village - Full Planning 20 affordable residential units - Subject to completion of S.106 Agreement - Adjacent to a completed residential scheme
Contact Agent
Smart Picks — Professionals Relevant to This Land
Based on this property's key features, here are the specialists you may want to consult as part of your due diligence: land agents, rics surveyors, rural solicitors, planning consultants and land consultants.

Land Agents
Essential for navigating the land market, finding buyers, and securing the best price.

RICS Surveyors
High-value property (£400K+) requires professional valuation for accurate pricing and due diligence.

Rural Solicitors
Significant investment (£400K+) requires legal expertise for conveyancing, title checks, and transaction security.

Planning Consultants
Planning-sensitive site needs expert guidance for applications and development strategy.

Land Consultants
Multiple parcels or complex land structure requires expert analysis for optimal development strategy.
Location
Residential Development Site