




Development Land in Church Street for Sale - £500,000
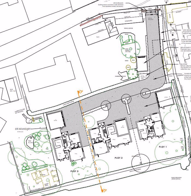
An exceptional opportunity with full planning permission granted (Ref: WL/2024/00504) for the construction of three detached properties each with individual layout and four bedrooms with double garages on land to the rear of 16 Church Street, ...
Development Land in Church Street for Sale - £500,000
Description
An exceptional opportunity with full planning permission granted (Ref: WL/2024/00504) for the construction of three detached properties each with individual layout and four bedrooms with double garages on land to the rear of 16 Church Street, ...
Contact Agent
Smart Picks — Professionals Relevant to This Land
Based on this property's key features, here are the specialists you may want to consult as part of your due diligence: land agents, rics surveyors, rural solicitors and planning consultants.

Land Agents
Essential for navigating the land market, finding buyers, and securing the best price.

RICS Surveyors
High-value property (£500K+) requires professional valuation for accurate pricing and due diligence.

Rural Solicitors
Significant investment (£500K+) requires legal expertise for conveyancing, title checks, and transaction security.

Planning Consultants
Planning-sensitive site needs expert guidance for applications and development strategy.
Location
Church Street