




Plot for sale
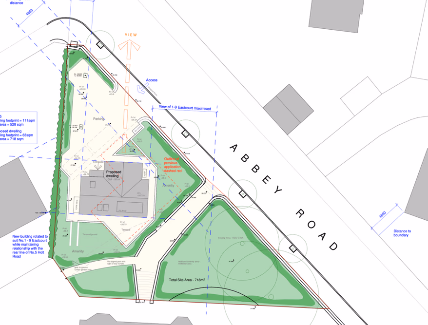
Planning permission has been granted (ref APP/Y2620/W/24/3353881) for the erection of a 2 bedroom chalet style dwelling and associated works in accordance with the terms of the planning application, (Ref PF/24/0476). Located in this popular seaside town on the North Norfolk coast, the site is ...
Plot for sale
Description
Planning permission has been granted (ref APP/Y2620/W/24/3353881) for the erection of a 2 bedroom chalet style dwelling and associated works in accordance with the terms of the planning application, (Ref PF/24/0476). Located in this popular seaside town on the North Norfolk coast, the site is ...
Contact Agent
Smart Picks — Professionals Relevant to This Land
Based on this property's key features, here are the specialists you may want to consult as part of your due diligence: land agents, rural solicitors and planning consultants.

Land Agents
Essential for navigating the land market, finding buyers, and securing the best price.

Rural Solicitors
Significant investment (£200K+) requires legal expertise for conveyancing, title checks, and transaction security.

Planning Consultants
Planning-sensitive site needs expert guidance for applications and development strategy.
Location
Abbey Road