




1.3 Acres Development Land in Old Chapel Gardens for Sale - £325,000
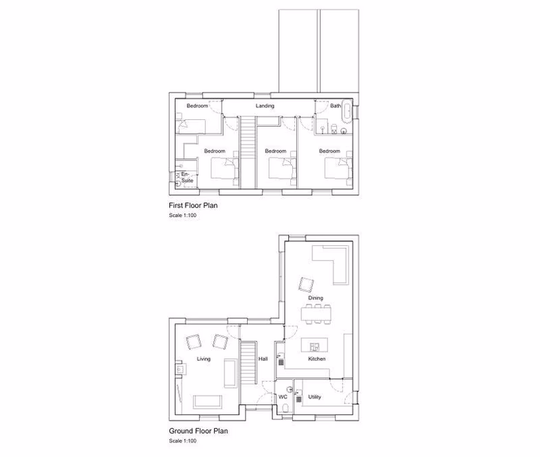
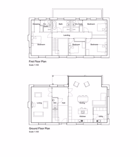
FULL PLANINNG FOR FIVE DETACHED HOUSES! Located within the village of Glentham, ideally located only 8 miles from Market Rasen, 12 miles from Gainsborough and 14 miles from the cathedral city of Lincoln, is this fantastic development site which extends to approximately 1.27 acres, with full pl...
1.3 Acres Development Land in Old Chapel Gardens for Sale - £325,000
Description
FULL PLANINNG FOR FIVE DETACHED HOUSES! Located within the village of Glentham, ideally located only 8 miles from Market Rasen, 12 miles from Gainsborough and 14 miles from the cathedral city of Lincoln, is this fantastic development site which extends to approximately 1.27 acres, with full pl...
Contact Agent
Smart Picks — Professionals Relevant to This Land
Based on this property's key features, here are the specialists you may want to consult as part of your due diligence: land agents, rics surveyors and rural solicitors.

Land Agents
Essential for navigating the land market, finding buyers, and securing the best price.

RICS Surveyors
High-value property (£325K+) requires professional valuation for accurate pricing and due diligence.

Rural Solicitors
Significant investment (£325K+) requires legal expertise for conveyancing, title checks, and transaction security.
Location
Old Chapel Gardens