




Development Land in Land North Side of Laceys Lane for Sale - £250,000
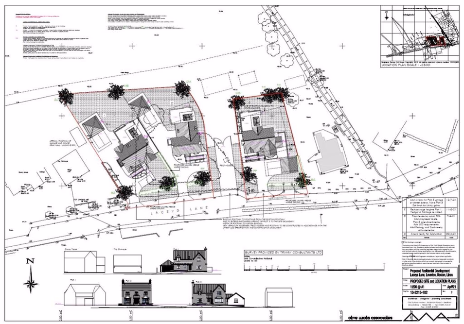
Residential Development Opportunity – Full planning permission granted for 3 two storey dwellings, set within the village of Leverton, North- East of the market town of Boston. The overall site extends to an approx...
Development Land in Land North Side of Laceys Lane for Sale - £250,000
Description
Residential Development Opportunity – Full planning permission granted for 3 two storey dwellings, set within the village of Leverton, North- East of the market town of Boston. The overall site extends to an approx...
Contact Agent
Smart Picks — Professionals Relevant to This Land
Based on this property's key features, here are the specialists you may want to consult as part of your due diligence: land agents, rural solicitors, planning consultants and rics surveyors.

Land Agents
Essential for navigating the land market, finding buyers, and securing the best price.

Rural Solicitors
Significant investment (£250K+) requires legal expertise for conveyancing, title checks, and transaction security.

Planning Consultants
Planning-sensitive site needs expert guidance for applications and development strategy.

RICS Surveyors
Prime or productive land requires professional valuation to ensure fair market value.
Location
Land North Side of Laceys Lane