




0.32-Acre Field Land for Sale in Lancashire
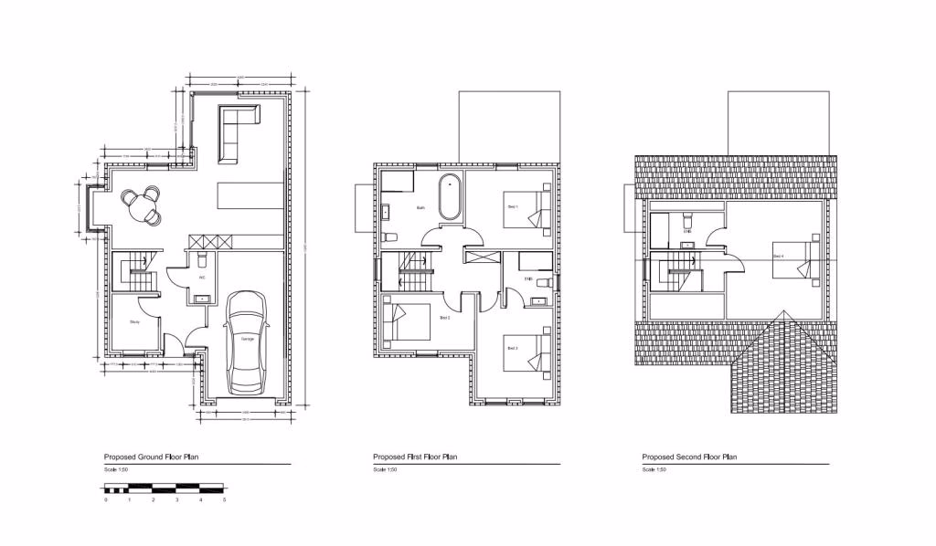
We are delighted to offer this superb opportunity to purchase a plot with the benefit of Full Planning Permission for the erection of four dwellings following the demolition of an existing barn, known as Development Plots at Lawton House Farm. The site is shown edged red on the site plan and extends to approximately 0.32 ac (0.13 ha) OTA. The site benefits from a right of way granted over the area shaded brown on the site plan. The plot obtained Outline Planning Permission under application number 06/2020/0195 on 16th June 2020, from Preston City Council. Subsequently, reserved matters where approved on 27th March 2025 under application number 06/2023/0660. The full details of both planning permissions can be found via the Preston City Council Planning Portal. Bartle Lane offers a desirable, rural setting with each plot benefitting from an attractive outlook onto agricultural pasture land. The site has the advantage of roadside frontage onto Bartle Lane which imparts excellent connectivity to the motorway network including the M55 and subsequently the M6 via Junction 32. Preston Town Centre can be reached inside 15 minutes making this site desirable to those wishing to commute and those requiring easy access into the City whilst also looking to benefit from the surrounding countryside. Nearby Cottam also provides a wide range of amenities close at hand, and the area benefits from excellent primary and secondary schools, amongst other attractions.The surrounding locality is benefitting from ongoing development and improvement, enabling easier access to the motorway network and improved connectivity to the surrounding County.Development sites of this nature are not often offered to the market, therefore, this is a rare opportunity for a developer to build four bespoke properties within a desirable rural location.
0.32-Acre Field Land for Sale in Lancashire
Description
We are delighted to offer this superb opportunity to purchase a plot with the benefit of Full Planning Permission for the erection of four dwellings following the demolition of an existing barn, known as Development Plots at Lawton House Farm. The site is shown edged red on the site plan and extends to approximately 0.32 ac (0.13 ha) OTA. The site benefits from a right of way granted over the area shaded brown on the site plan. The plot obtained Outline Planning Permission under application number 06/2020/0195 on 16th June 2020, from Preston City Council. Subsequently, reserved matters where approved on 27th March 2025 under application number 06/2023/0660. The full details of both planning permissions can be found via the Preston City Council Planning Portal. Bartle Lane offers a desirable, rural setting with each plot benefitting from an attractive outlook onto agricultural pasture land. The site has the advantage of roadside frontage onto Bartle Lane which imparts excellent connectivity to the motorway network including the M55 and subsequently the M6 via Junction 32. Preston Town Centre can be reached inside 15 minutes making this site desirable to those wishing to commute and those requiring easy access into the City whilst also looking to benefit from the surrounding countryside. Nearby Cottam also provides a wide range of amenities close at hand, and the area benefits from excellent primary and secondary schools, amongst other attractions.The surrounding locality is benefitting from ongoing development and improvement, enabling easier access to the motorway network and improved connectivity to the surrounding County.Development sites of this nature are not often offered to the market, therefore, this is a rare opportunity for a developer to build four bespoke properties within a desirable rural location.
Contact Agent
Smart Picks — Professionals Relevant to This Land
Based on this property's key features, here are the specialists you may want to consult as part of your due diligence: land agents, rics surveyors, rural solicitors, environmental consultants and planning consultants.

Land Agents
Essential for navigating the land market, finding buyers, and securing the best price.

RICS Surveyors
High-value property (£450K+) requires professional valuation for accurate pricing and due diligence.

Rural Solicitors
Significant investment (£450K+) requires legal expertise for conveyancing, title checks, and transaction security.

Environmental Consultants
Environmental factors identified - specialist needed for habitat surveys and compliance.

Planning Consultants
Planning-sensitive site needs expert guidance for applications and development strategy.
Location
Development