
1/7




+2
more
£295K
Size not specified
£295K
Upbrooks
Size not specified
Development Land in Upbrooks for Sale - £295,000
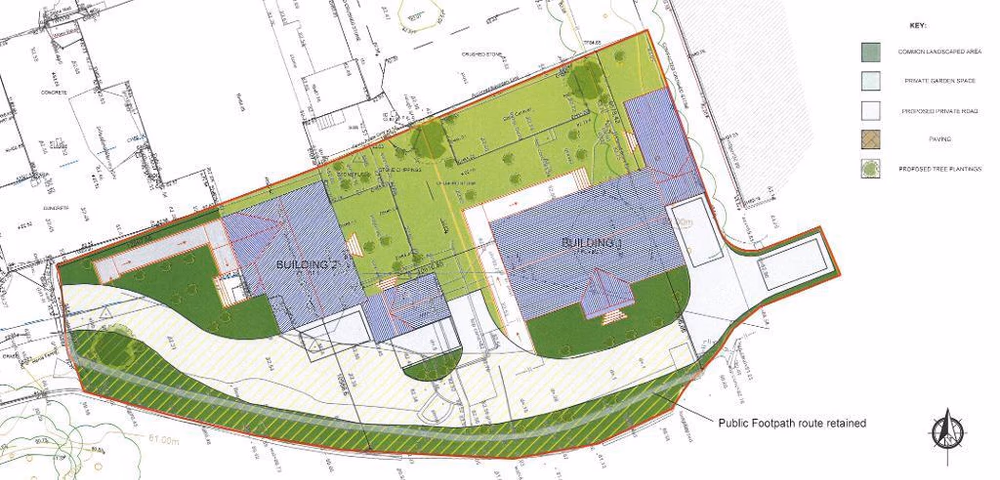
A fantastic opportunity to acquire this building plot which has planning permission granted for two detached family houses both with driveways, garages and gardens. House 1 is the larger of the two wi...
Development Land in Upbrooks for Sale - £295,000
Size not specified
development
available
freehold
Description
A fantastic opportunity to acquire this building plot which has planning permission granted for two detached family houses both with driveways, garages and gardens. House 1 is the larger of the two wi...
Contact Agent
Honeywell, Clitheroe
Location
Upbrooks