




Development Land in St. Catherines Drive for Sale - £550,000
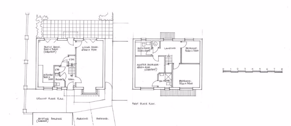
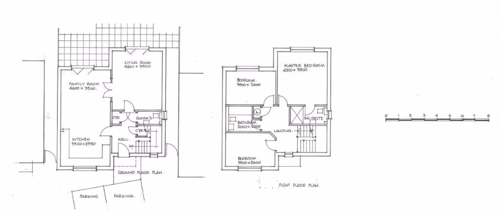
*** DEVELOPMENT OPPORTUNITY *** An excellent development opportunity comprising a parcel of land with planning permission granted for three well-proportioned, detached houses.
Development Land in St. Catherines Drive for Sale - £550,000
Description
*** DEVELOPMENT OPPORTUNITY *** An excellent development opportunity comprising a parcel of land with planning permission granted for three well-proportioned, detached houses.
Contact Agent
Smart Picks — Professionals Relevant to This Land
Based on this property's key features, here are the specialists you may want to consult as part of your due diligence: land agents, rics surveyors, rural solicitors, planning consultants and land consultants.

Land Agents
Essential for navigating the land market, finding buyers, and securing the best price.

RICS Surveyors
High-value property (£550K+) requires professional valuation for accurate pricing and due diligence.

Rural Solicitors
Significant investment (£550K+) requires legal expertise for conveyancing, title checks, and transaction security.

Planning Consultants
Planning-sensitive site needs expert guidance for applications and development strategy.

Land Consultants
Multiple parcels or complex land structure requires expert analysis for optimal development strategy.
Location
St. Catherines Drive