



Development Land in Land and Buildings on the SE Side of Mather Road for Sale - £450,000
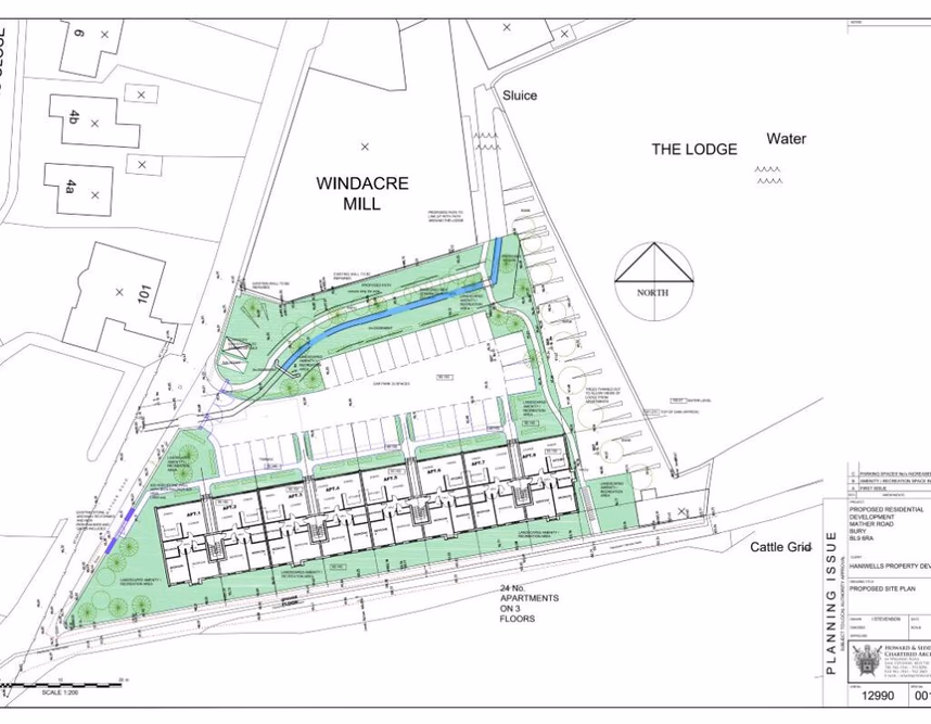
DEVELOPMENT OPPORTUNITYA 3,400 metre square vacant site with the benefit of lapsed planning permission to erect a 3 storey apartment scheme comprising of 24 X 2 bed no. units. We believe all main services are available however, purchasers should make their own further enquiries. Planning ...
Development Land in Land and Buildings on the SE Side of Mather Road for Sale - £450,000
Description
DEVELOPMENT OPPORTUNITYA 3,400 metre square vacant site with the benefit of lapsed planning permission to erect a 3 storey apartment scheme comprising of 24 X 2 bed no. units. We believe all main services are available however, purchasers should make their own further enquiries. Planning ...
Contact Agent
Smart Picks — Professionals Relevant to This Land
Based on this property's key features, here are the specialists you may want to consult as part of your due diligence: land agents, rics surveyors, rural solicitors and planning consultants.

Land Agents
Essential for navigating the land market, finding buyers, and securing the best price.

RICS Surveyors
High-value property (£450K+) requires professional valuation for accurate pricing and due diligence.

Rural Solicitors
Significant investment (£450K+) requires legal expertise for conveyancing, title checks, and transaction security.

Planning Consultants
Planning-sensitive site needs expert guidance for applications and development strategy.
Location
Land and Buildings on the SE Side of Mather Road